EasyManua.ls Logo

Vertical Express I-2 - Page 64

Vertical Express I-2
70 pages
Print Icon
To Next Page IconTo Next Page
To Next Page IconTo Next Page
To Previous Page IconTo Previous Page
To Previous Page IconTo Previous Page
Loading...
Reference Material I-2 / I-3 Valve
62 ©Vertical Express
Sequence of Events
(continued)
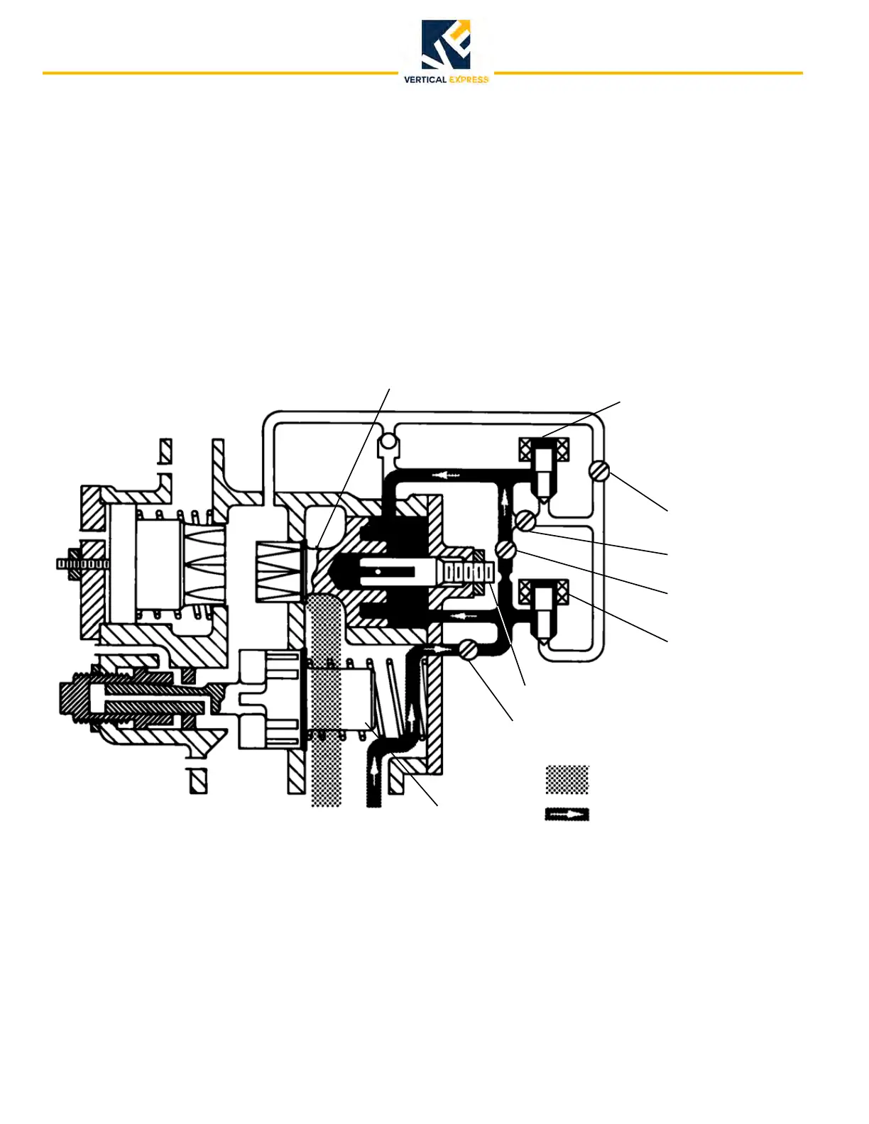
Manual Lowering The manual lowering valve is parallel to the down slow solenoid and, when opened, lowers
the car at leveling speed during emergencies.
Down Stop 1. The down slow solenoid de-energizes, stopping all flow to the tank and stopping the
car.
2. Pressure from the jack and the spring causes the piston to close. See Figure 13.
3. The down stop adjustment controls the rate of closing and the smoothness.
Figure 13 - Down Stop Diagram
TANK
PUMP JACK
Lowering Piston
Down Slow Solenoid (Open)
Down Start
Adjustment
Manual Lowering
Down Slowdown
Adjustment
Down Fast
Solenoid (Open)
Lowering Speed Adjustment
Down Stop Adjustment
Check Valve Piston
CONTROL FLOW
MAIN FLOW