EasyManua.ls Logo

Vertiv Liebert Mini-Mate MT036 - Unit to Unit Network Connections: Two or More 4-5 Ton Units Networked Using Switch

Vertiv Liebert Mini-Mate MT036
80 pages
Print Icon
To Next Page IconTo Next Page
To Next Page IconTo Next Page
To Previous Page IconTo Previous Page
To Previous Page IconTo Previous Page
Loading...
REV : 1
REV DATE : 8/18
DPN004841
Page :2 /2
Form No.: DPN001040_REV4
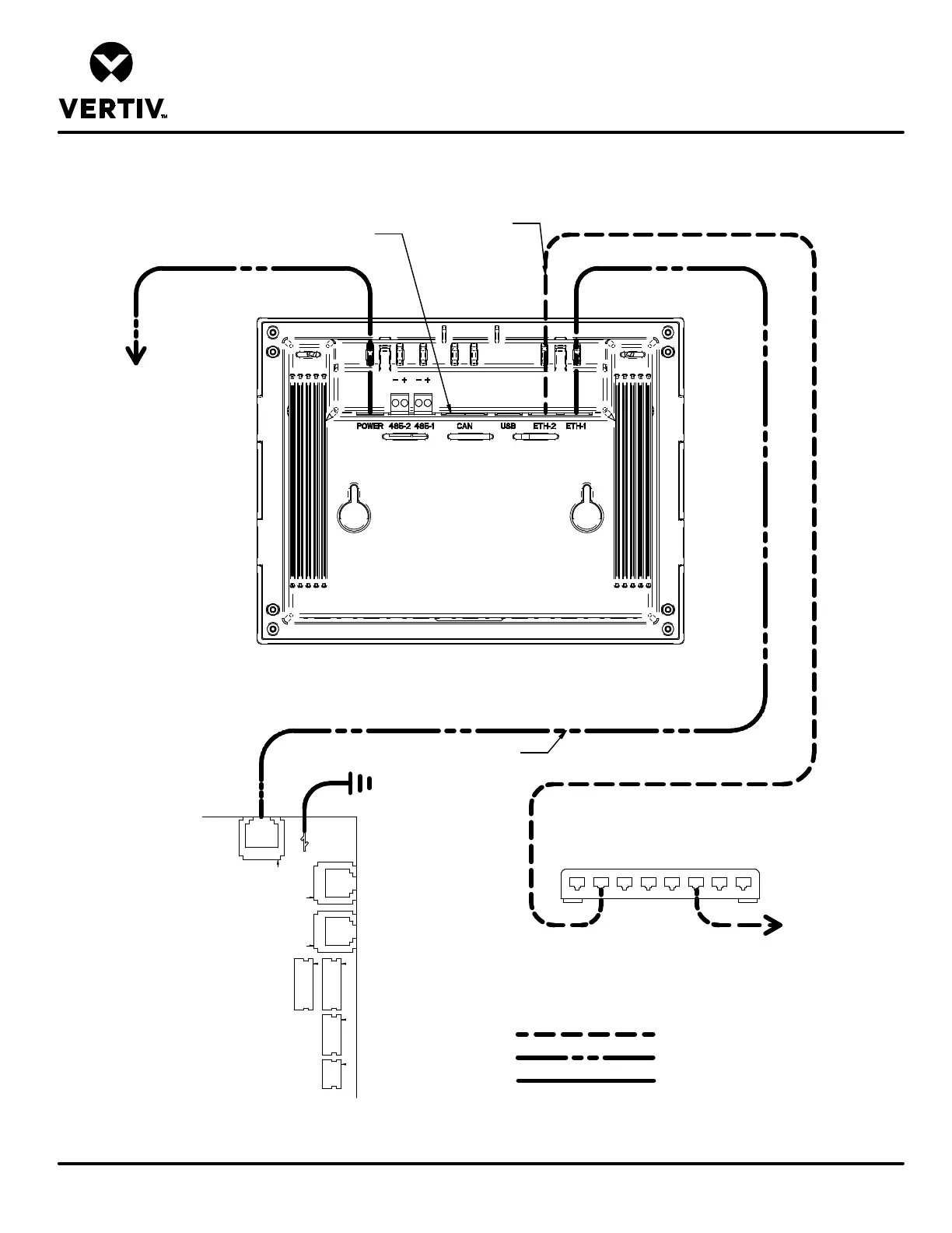
LIEBERT MINI-MATE
VARIABLE CAPACITY
UNIT TO UNIT NETWORK CONNECTIONS
REAR VIEW OF DISPLAY
U2U NETWORKING SWITCH
(FIELD SUPPLIED)
Notes:
1. Refer to DPN004057 for connection points on Liebert Mini-Mate unit.
2.
Refer to DPN004238 for general arrangement and field connections.
TO / FROM OTHER
NETWORKED UNITS
ETHERNET CABLE
(FIELD SUPPLIED)
TO
TERMINALS
13,14 AND 15
DO NOT USE CANBUS
CONNECTORS
ETHERNET CABLE
TWO OR MORE 4-5 TON UNITS NETWORKED USING SWITCH
P7 P13
P12
P11
E5
P66 P67
P64
iCOM
I/O BOARD
Field Supplied Wiring - Unit Networking
Field Supplied Wiring - Individual Display
Factory Supplied Ground Wire

Table of Contents

Related product manuals