EasyManua.ls Logo

Vertiv NetXtend Flex 20 - Page 134

Vertiv NetXtend Flex 20
188 pages
Print Icon
To Next Page IconTo Next Page
To Next Page IconTo Next Page
To Previous Page IconTo Previous Page
To Previous Page IconTo Previous Page
Loading...
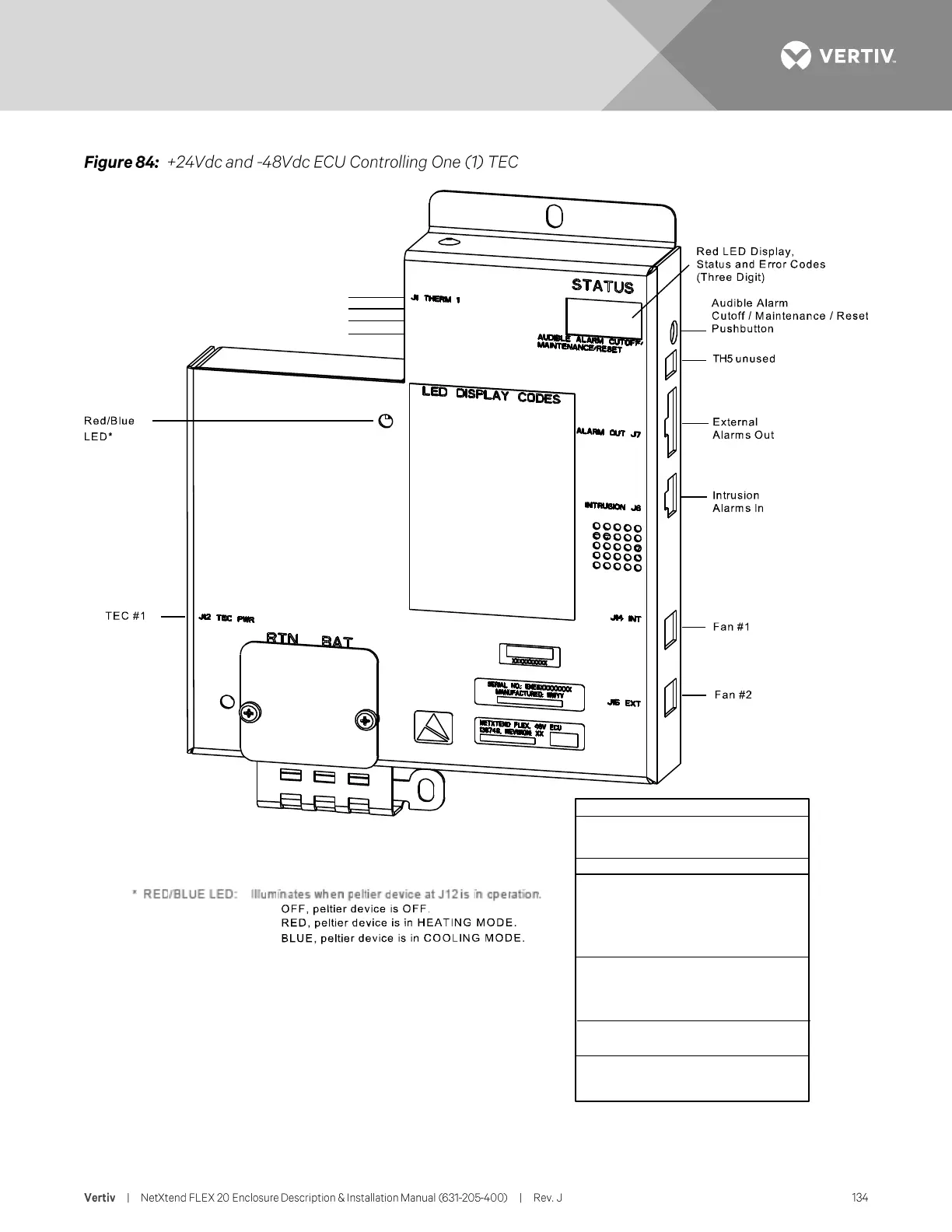
Thermistor 1
unused
unused
unused
LED DISPLAY CODES
UP - Controller OK
PC = Product Code
FC = Firmware Code Version X.X.X
C01, C02 - PCB Comm Failure
d01, d02 - Door Open
d03 - Maintenance Mode
MAINTENANCE MODE: Press Button for 6 seconds
to enter 60min. c ontroller disable mode
RESET: Press Button for 11 seconds to reset controller
E01 - Thermistor 1 (J1) FAIL
E02 - Hi Temp
E12 - Lo Te mp
E18 - Voltage Low/Disconnect
F01 - J14 Fan Failure (Internal)
F02 - J15 Fan Failure (External)
J12 - Power Input to TEC
TEC WIRING REF ONLY

Table of Contents

Related product manuals