EasyManua.ls Logo

Victory VR-2 - Page 14

Victory VR-2
19 pages
Print Icon
To Next Page IconTo Next Page
To Next Page IconTo Next Page
To Previous Page IconTo Previous Page
To Previous Page IconTo Previous Page
Loading...
xiixii
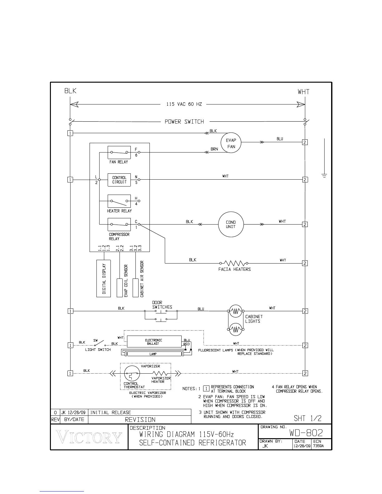
1, 2 & 3 SECTION REFRIGERATOR

Related product manuals