EasyManua.ls Logo

Viessmann Vitocal 222-A - Page 83

Viessmann Vitocal 222-A
156 pages
Print Icon
To Next Page IconTo Next Page
To Next Page IconTo Next Page
To Previous Page IconTo Previous Page
To Previous Page IconTo Previous Page
Loading...
83
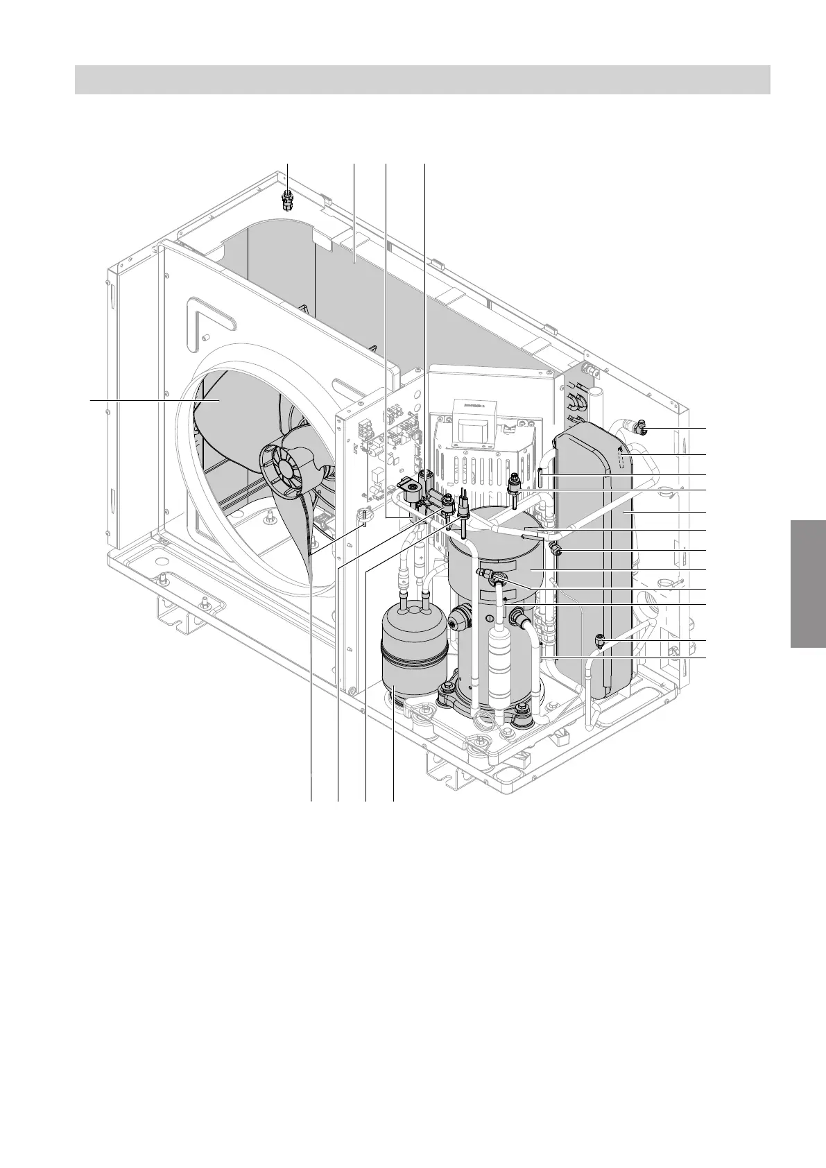
Outdoor units, types 221.A04 to A08
A
B C
L
N
O
S
E
K
P
U
VW
D
F
G
H
M
R
T
X
Fig. 66
A
Fan
B
Air intake temperature sensor (T5)
C
Heat exchanger (evaporator)
D
Electronic expansion valve
E
4-way diverter valve
F
Secondary circuit air vent valve
G
Secondary circuit flow temperature sensor
upstream of instantaneous heating water heater
(T1)
H
Evaporator suction gas temperature sensor (T7)
K
Low pressure sensor
L
Condenser
M
Reversible suction gas temperature sensor (T3)
N
Schrader valve, low pressure side
O
Compressor
P
Schrader valve, high pressure side
R
Hot gas temperature sensor (T6)
S
Schrader valve, high pressure side
T
Compressor suction gas temperature sensor (T4)
U
Refrigerant receiver
V
Safety high pressure switch
W
High pressure sensor
X
Refrigerant circuit controller temperature sensor
(T2)
Maintenance
Overview of internal components: Outdoor unit (cont.)
5831412
Maintenance

Table of Contents

Other manuals for Viessmann Vitocal 222-A

Related product manuals