EasyManua.ls Logo

Viking DDSB483D - Display Panel Operation; Display Panel Keyboard Layout; Freezer and Refrigerator Temp Pads

Viking DDSB483D
41 pages
Print Icon
To Next Page IconTo Next Page
To Next Page IconTo Next Page
To Previous Page IconTo Previous Page
To Previous Page IconTo Previous Page
Loading...
19
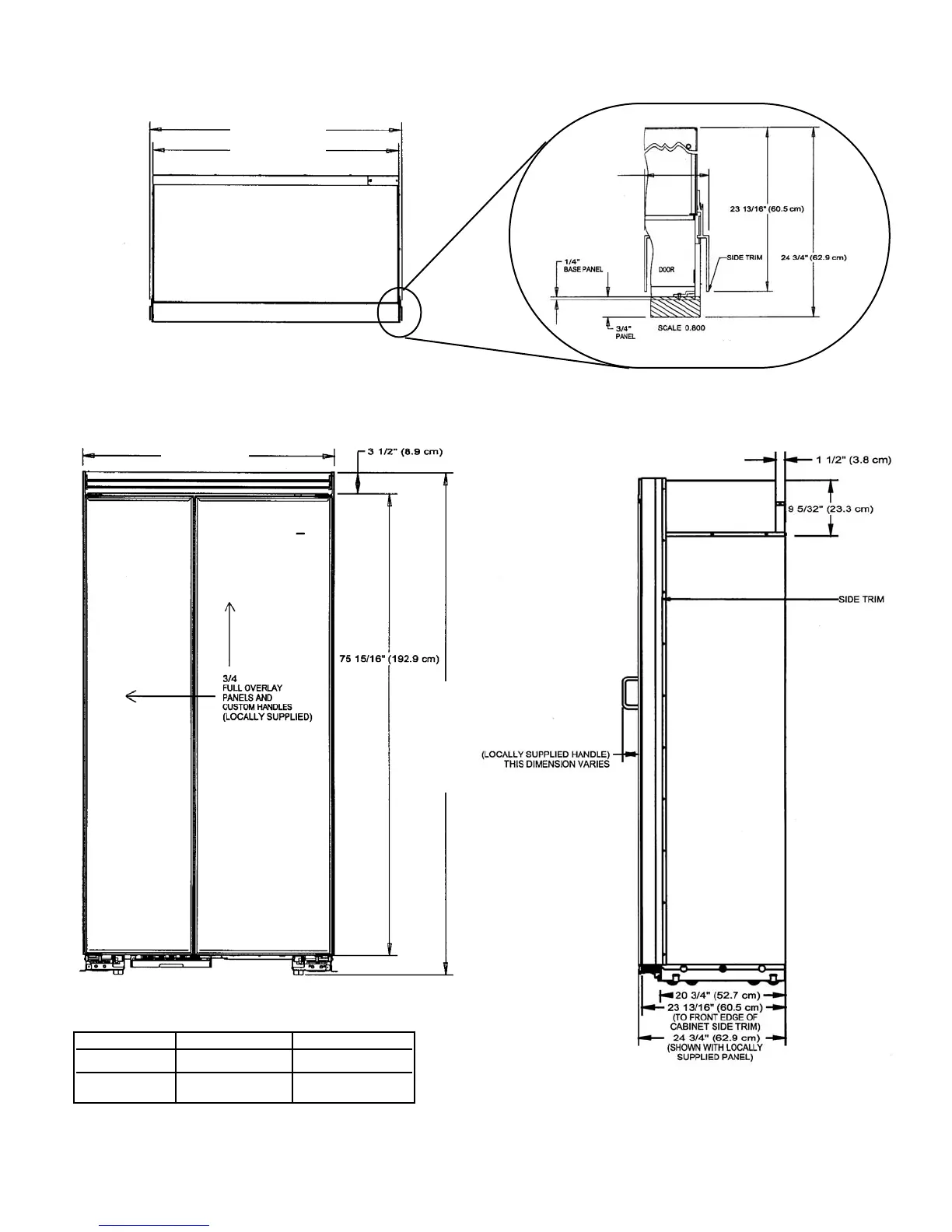
SIDE-BY-SIDE REFRIGERATOR OVERALL DIMENSIONS - FULL OVERLAY MODELS
TTOOPP
FFRROONNTT
SSIIDDEE
AA
BB
AA
AA
8822--77//88""
((221100..55 ccmm))
mmiinn..
TTOO
8844--11//1166""
((221133..55 ccmm))
mmaaxx..
AA BB
42" W 42"(106.7 cm) 41"(104.1 cm)
48" W 48"(121.9 cm) 47"(119.4 cm)

Other manuals for Viking DDSB483D

Related product manuals