EasyManua.ls Logo

Viking DDSB483D - High Voltage Board Diagnostics; Motor and Fan Relay Checks; Defrost Heater and Terminator Checks

Viking DDSB483D
41 pages
Print Icon
To Next Page IconTo Next Page
To Next Page IconTo Next Page
To Previous Page IconTo Previous Page
To Previous Page IconTo Previous Page
Loading...
26
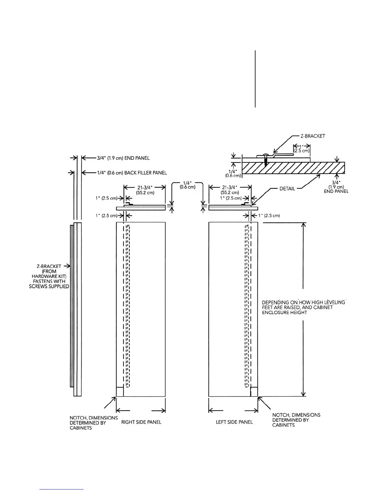
CUSTOM SIDE PANEL DIMENSIONS
DESIGNER/FULL OVERLAY MODELS
FFOORR 33//44 ((11..99 ccmm)) SSIIDDEE PPAANNEELLSS
NNOOTTEE:: AAddddiinngg aa 33//44 ((11..99 ccmm)) ssiiddee ppaanneell aaddddss aann aaddddiittiioonnaall 33//44((11..99 ccmm)) ttoo tthhee oovveerraallll wwiiddtthh ooff tthhee pprroodduucctt ffoorr eeaacchh
ssiiddee ppaanneell uusseedd..
NNOOTTEE:: RReeqquuiirreess ssiiddee ppaanneell hhaarrddwwaarree kkiitt ((KKiitt MMooddeell NNuummbbeerr -- SSPPHHKKDDSS))
24”
(61.0 cm)
24”
(61.0 cm)
CUSTOM 3/4” (1.9 cm) SIDE PANELS (BY OTHERS) FOR DESIGNER SERIES, TRIM KIT
AND FULL OVERLAY.
NNOOTTEE:: RReeqquuiirreess ssiiddee ppaanneell hhaarrddwwaarree kkiitt ((KKiitt MMooddeell NNuummbbeerr -- SSPPHHKKDDSS))
8822--77//88 ((221100..55 ccmm)) ttoo 8844--11//1166 (( 221133..55 ccmm))
OOPPTTIIOONNAALL KKIICCKKPPLLAATTEE
OOPPTTIIOONNAALL KKIICCKKPPLLAATTEE

Other manuals for Viking DDSB483D

Related product manuals