EasyManua.ls Logo

Viking VCSB423D - SIDE-BY-SIDE REFRIGERATOR OVERALL DIMENSIONS - FULL OVERLAY MODELS; Full Overlay Model Overall Dimensions

Viking VCSB423D
41 pages
Print Icon
To Next Page IconTo Next Page
To Next Page IconTo Next Page
To Previous Page IconTo Previous Page
To Previous Page IconTo Previous Page
Loading...
19
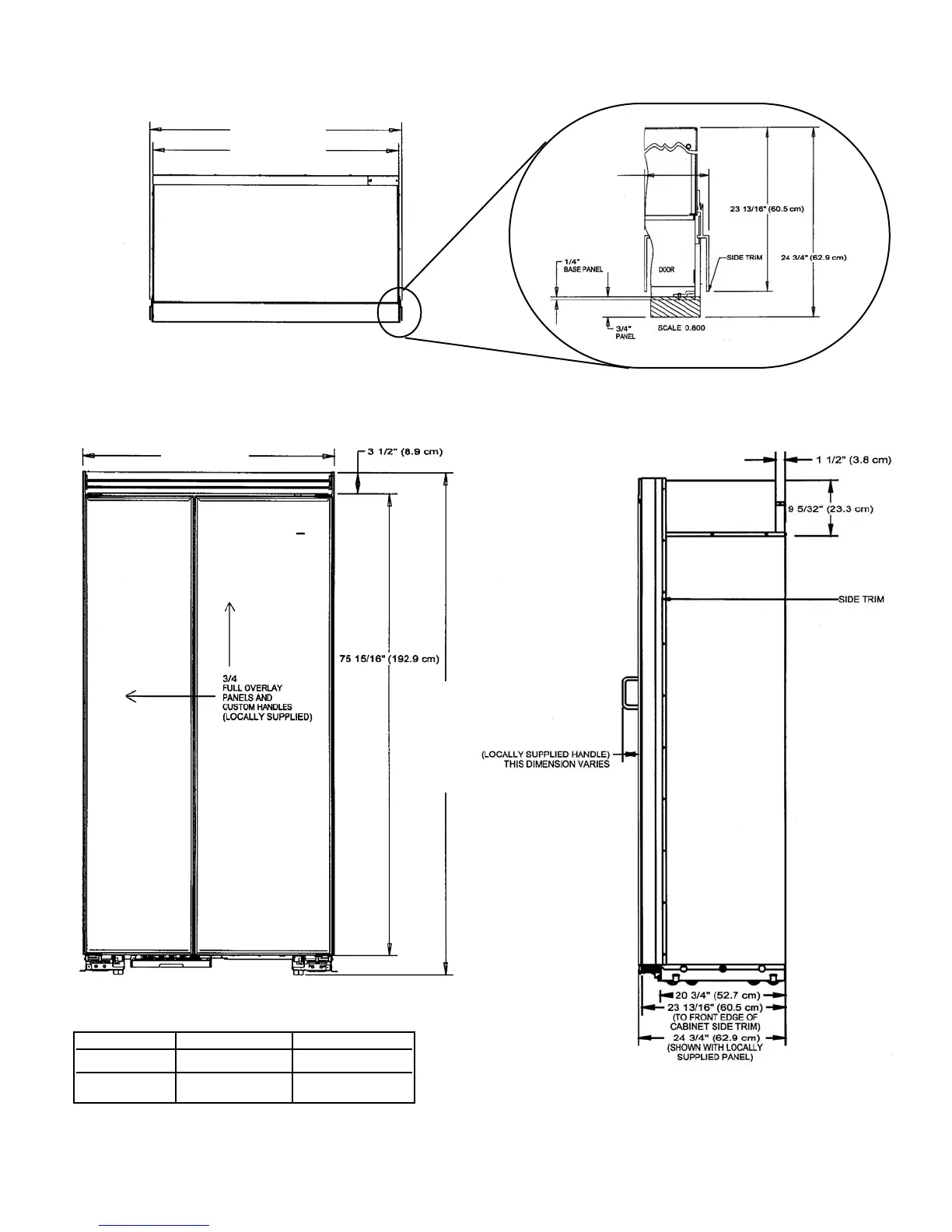
SIDE-BY-SIDE REFRIGERATOR OVERALL DIMENSIONS - FULL OVERLAY MODELS
TTOOPP
FFRROONNTT
SSIIDDEE
AA
BB
AA
AA
8822--77//88""
((221100..55 ccmm))
mmiinn..
TTOO
8844--11//1166""
((221133..55 ccmm))
mmaaxx..
AA BB
42" W 42"(106.7 cm) 41"(104.1 cm)
48" W 48"(121.9 cm) 47"(119.4 cm)

Related product manuals