EasyManua.ls Logo

Viking VCSB483 - Side-by-Side Refrigerator Overall Dimensions; Professional Model

Viking VCSB483
41 pages
Print Icon
To Next Page IconTo Next Page
To Next Page IconTo Next Page
To Previous Page IconTo Previous Page
To Previous Page IconTo Previous Page
Loading...
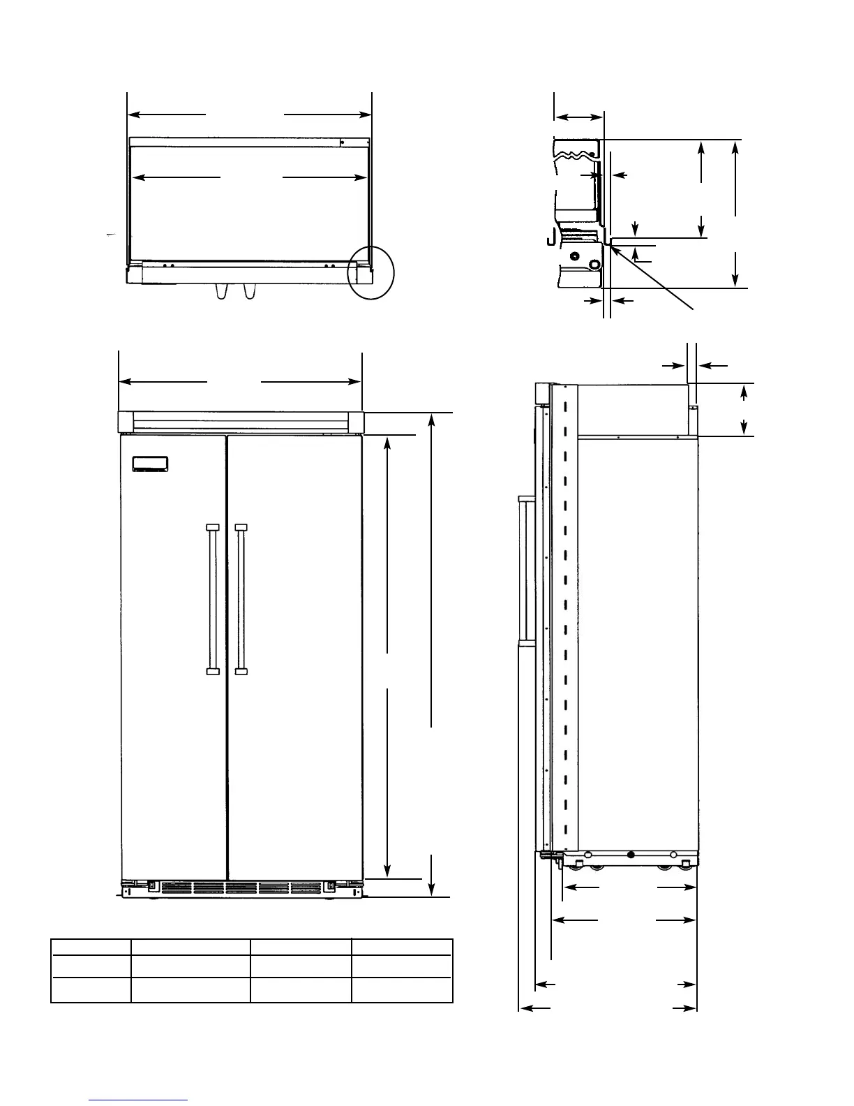
SIDE-BY-SIDE REFRIGERATOR OVERALL DIMENSIONS
PROFESSIONAL MODEL
14
A
B
SS
SS
SS
A
22 3/16”
(56.4 cm)
24 3/4”
(62.9 cm)
5/16”
(0.8 cm)
9/32”
(.7 cm
5/16”
(0.8 cm)
PPOORRTTEE
Side Trim
C
75 15/16”
(192.9 cm)
82-7/8"
(210.5 cm)
min.
to
84-1/16"
(213.5 cm)
max.
1 1/2”
(3.8 cm)
9 5/32” (23.3 cm)
20 3/4”
(52.7 cm)
22 3/16”
(56.4 cm)
(to rear side of cabinet side
trim)
24 11/16” (62.7 cm)
24 3/4” (69.2 cm)
TTOOPP
FFRROONNTT
SSIIDDEE
AA BB CC
42" W 41-1/2"(105.4 cm) 41"(104.1 cm) 42" (1067 cm)
48" W 47-1/2"(120.7 cm) 47" (119.4 cm) 48"(121.9 cm)

Related product manuals