EasyManua.ls Logo

Viking VCSB483 - Page 15

Viking VCSB483
41 pages
Print Icon
To Next Page IconTo Next Page
To Next Page IconTo Next Page
To Previous Page IconTo Previous Page
To Previous Page IconTo Previous Page
Loading...
15
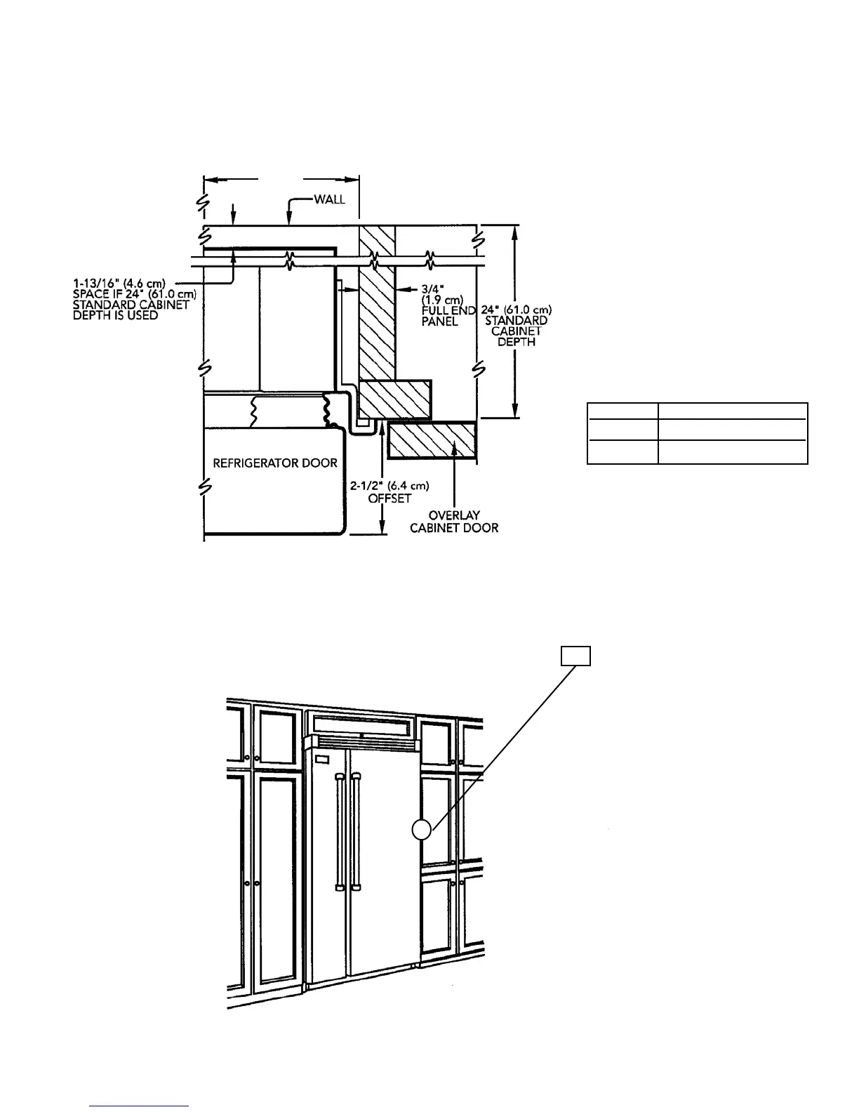
CABINET INFORMATION - PROFESSIONAL MODELS
Professional models fit “semi-flush” in standard 24” (61.0 cm) deep cabinet openings. The door face protrudes 2-1/2”
(6.4 cm) from the cabinet face. The handle protrudes an additional 2-1/2” (6.7 cm) into the room
DÉTAIL A-A
A-A
AA
AA
42" W 41-1/2" (105.4 cm))
48" W 47-1/2" (120.7 cm)

Related product manuals