EasyManua.ls Logo

VIPA SM 231 - Page 74

Default Icon
178 pages
Print Icon
To Next Page IconTo Next Page
To Next Page IconTo Next Page
To Previous Page IconTo Previous Page
To Previous Page IconTo Previous Page
Loading...
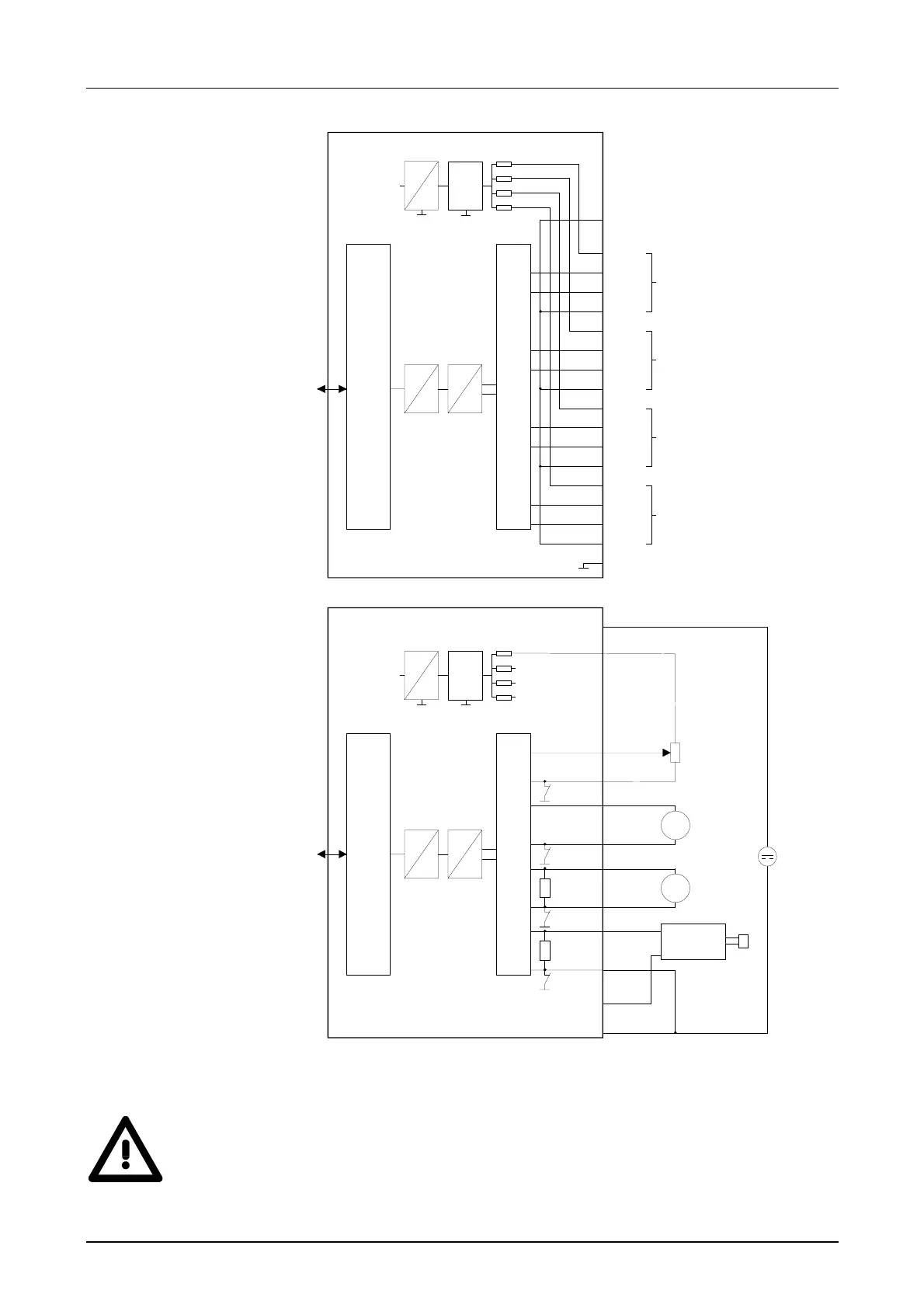
Chapter 2 Analog input modules Manual VIPA System 200V
2-50 HB97E - SM-AIO - Rev. 12/32
V-Bus
µP
Channel 0
+
D
A
2V5
Ref
DC/DC
100
100
100
100
-
2
3
4
1
L+(In)
L+(Out)
+
-
7
8
5
6
L+(Out)
+
-
11
12
9
10
L+(Out)
+
-
15
16
Mux
13
14
17
18
L+(Out)
GND
+2.5V
+2.5V
+2.5V
+2.5V
Channel 1
Channel 3
Channel 4
backplane bus
V-Bus
µP
Channel 0
Mux
Channel 1
+
D
A
2V5
Ref
DC/DC
backplane bus
100
100
100
100
-
V
+
-
Channel 2
A
-
Channel 3
-
+
+
R
Shunt
2
3
4
7
8
11
12
15
16
*)
*)
*)
*)
2-wire
sensor
+
R
Shunt
-
17
18
P
L+(Out)
DC 24V
1
L+
+
-
-
GND
*) During measuring the connection to ground is closed.
Attention!
If you connect one or more external differential sources (e.g. current
shunts), a further connection to GND (Pin 18) is not allowed! This may
damage the module!
Schematic
diagrams
Overview
Connection variants

Related product manuals