EasyManua.ls Logo

VOKERA Compact - Page 36

VOKERA Compact
44 pages
Print Icon
To Next Page IconTo Next Page
To Next Page IconTo Next Page
To Previous Page IconTo Previous Page
To Previous Page IconTo Previous Page
Loading...
34
Compact
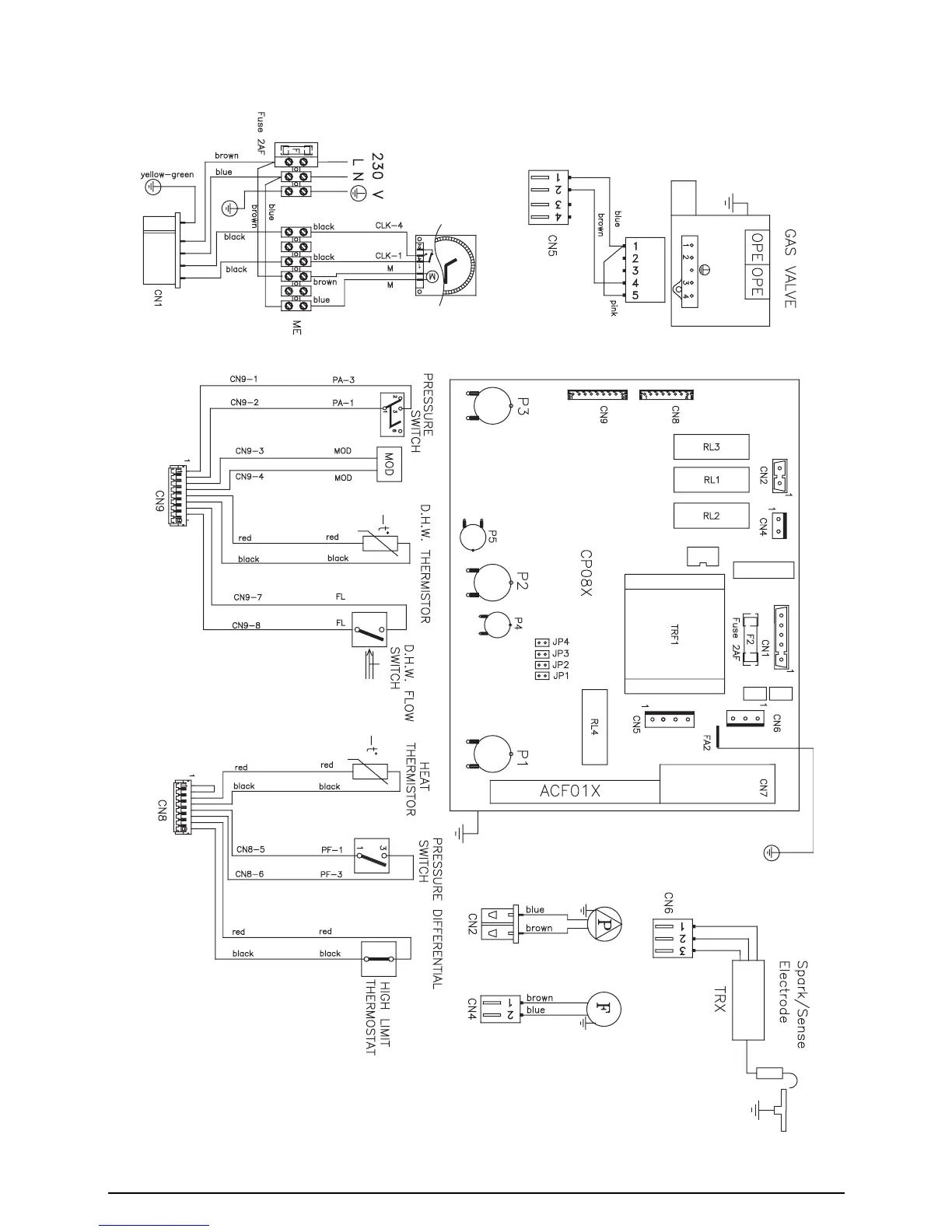
NOTE: L-N-E CONNECTION IS ADVISABLE
FUNCTIONAL DIAGRAM
Fig. 31

Other manuals for VOKERA Compact

Related product manuals