EasyManua.ls Logo

Volvo Penta 2003 - El Ect R I Cal Syst Em

Volvo Penta 2003
35 pages
Print Icon
To Next Page IconTo Next Page
To Next Page IconTo Next Page
To Previous Page IconTo Previous Page
To Previous Page IconTo Previous Page
Loading...
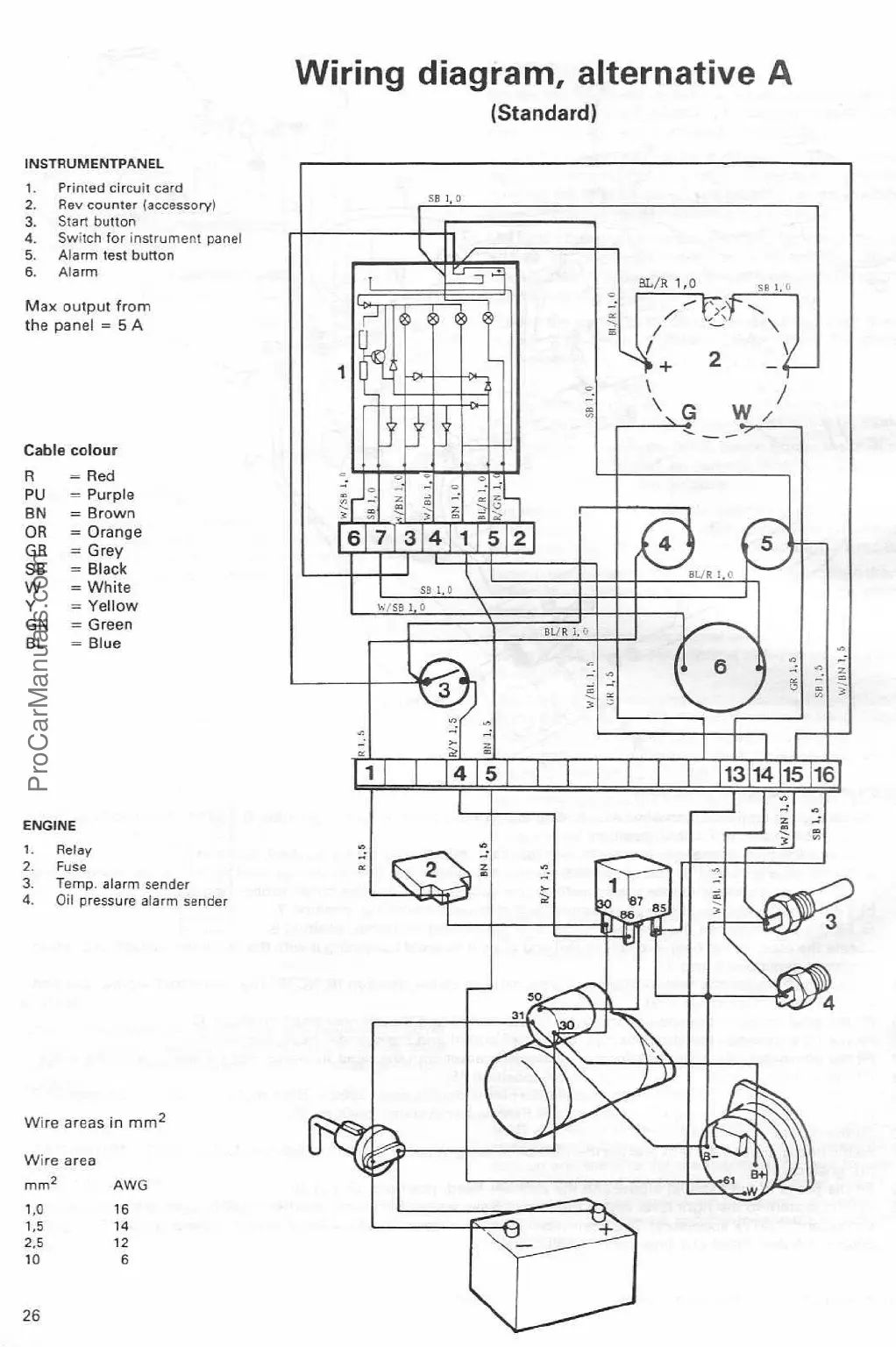
I NSTRUMENTPANEL
1 .
Pr i nt ed
ci r cui t
car d
2
.
Rev
count er
( accessor y)
3
.
St ar t
but t on
4
.
Swi t ch
f or
i nst r ument
panel
5
.
Al ar m
t est
but t on
6
.
Al ar m
Max
out put
f r om
t he
panel
=
5
A
Cabl e
col our
R
=
Red
PU
- -
Pur pl e
BN
=
Br own
OR
= Or ange
GR
=
Gr ey
SB
=
Bl ack
W
= Whi t e
Y
=
Yel l ow
GN
=
Gr een
BL
=
Bl ue
ENGI NE
1
.
Rel ay
2
.
Fuse
3
.
Temp
.
al ar m
sender
4
.
Oi l
pr essur e al ar m
sender
Wi r e
ar eas
i n
mm
2
Wi r e
ar ea
mm
2
1, 0
16
1, 5
14
2, 5
12
10
6
26
AWG
Wi r i ng
di agr am,
al t er nat i ve
A
( St andar d)
Z
ProCarManuals.com

Related product manuals