EasyManua.ls Logo

Walker Edison HAMMF2F - AI-HAMMF2 F A4 (1)

Walker Edison HAMMF2F
24 pages
Print Icon
To Next Page IconTo Next Page
To Next Page IconTo Next Page
To Previous Page IconTo Previous Page
To Previous Page IconTo Previous Page
Loading...
P.11
Copyright © 2023 by Walker Edison Furniture Co., LLC. All rights reserved.
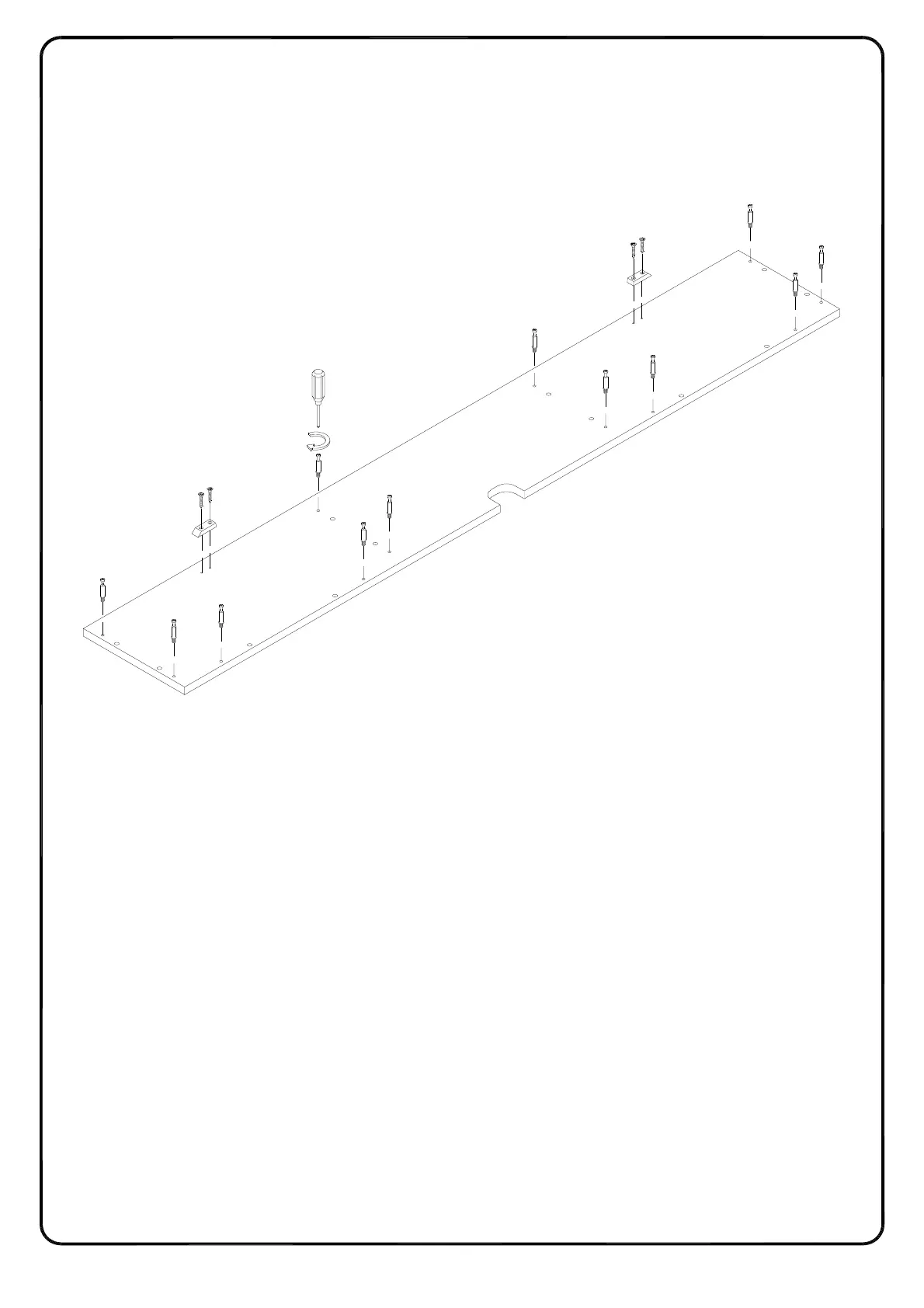
Step 3
B
B
B
B
B
B
B
B
J
J
K
K
1
(EN)
Attach cam bolt (B) to part (1) with Philips head screwdriver. Using screw (J) secure door
stopper (K) to part (1) with Philips head screwdriver as per diagram.
(FR)
Fixez le boulon à came (B) à la pièce (1) avec un tournevis cruciforme, puis utilisez la vis (J)
pour fixer butée de porte (K) à la pièce (1) avec un tournevis cruciforme conformément au
schéma.
(ESP)
Asegure el perno de leva (B) a la parte (1) con un destornillador de cabeza Philips, luego use
el tornillo (J) para fijar el tapón de la puerta (K) a la parte (1) con un destornillador de cabeza
Philips como se muestra en el diagrama.
(DE)
Befestigen Sie die Nockenschraube (B) ins Teil (1) durch den Kreuzschlitzschraubendreher
von Philips und sichern den Türstopper (K) ans Teil (1) mit der Schraube (J) durch den
Kreuzschlitzschraubendreher von Philips gemäß der Abbildung.

Related product manuals