EasyManua.ls Logo

Wanco WI3000P - Wiring Diagram

Default Icon
28 pages
Print Icon
To Next Page IconTo Next Page
To Next Page IconTo Next Page
To Previous Page IconTo Previous Page
To Previous Page IconTo Previous Page
Loading...
Page | 22
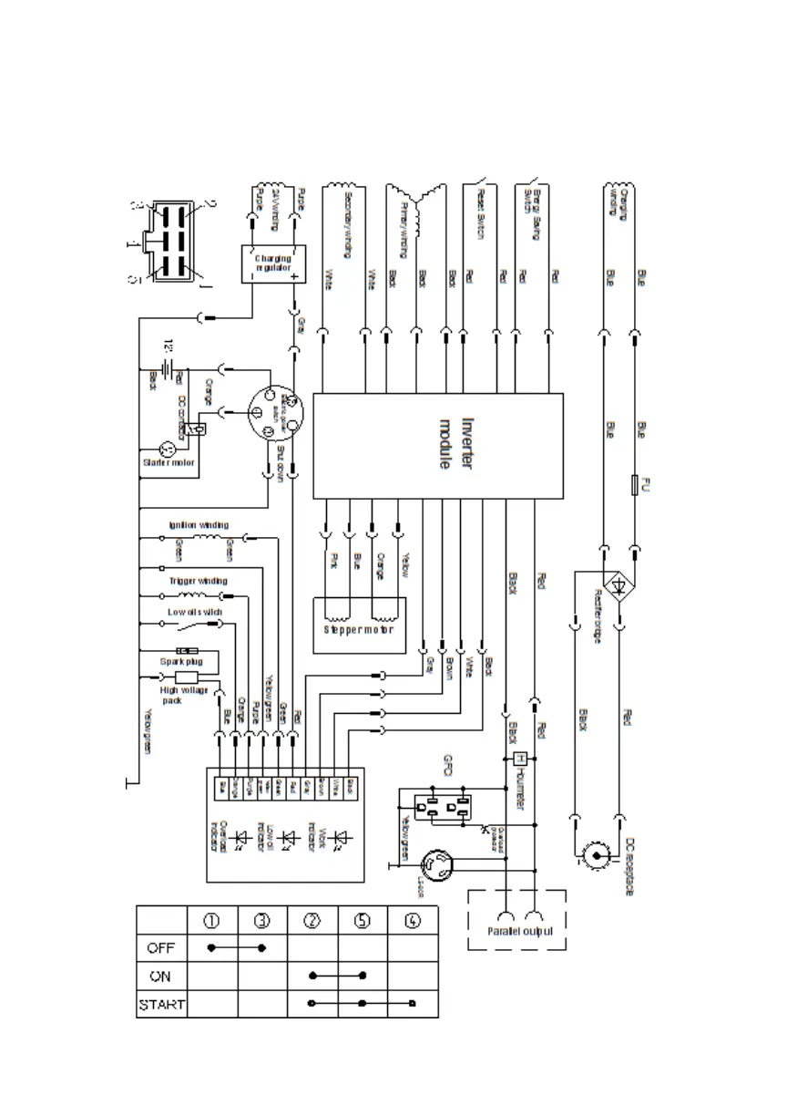
WIRING DIAGRAM
WI3000P