EasyManua.ls Logo

Warner Electric MCS-204 - Panel Mounting

Warner Electric MCS-204
24 pages
Print Icon
To Next Page IconTo Next Page
To Next Page IconTo Next Page
To Previous Page IconTo Previous Page
To Previous Page IconTo Previous Page
Loading...
6 Warner Electric • 800-825-9050 P-0257-WE • 819-9027
B. Panel Mounting
NOTE: Panel mount housings cannot be joined
together.
1. Insure the PC Board Assemblies have been
removed from the housings if installed by
loosening the two captive screws on the
front panels and sliding the assemblies out.
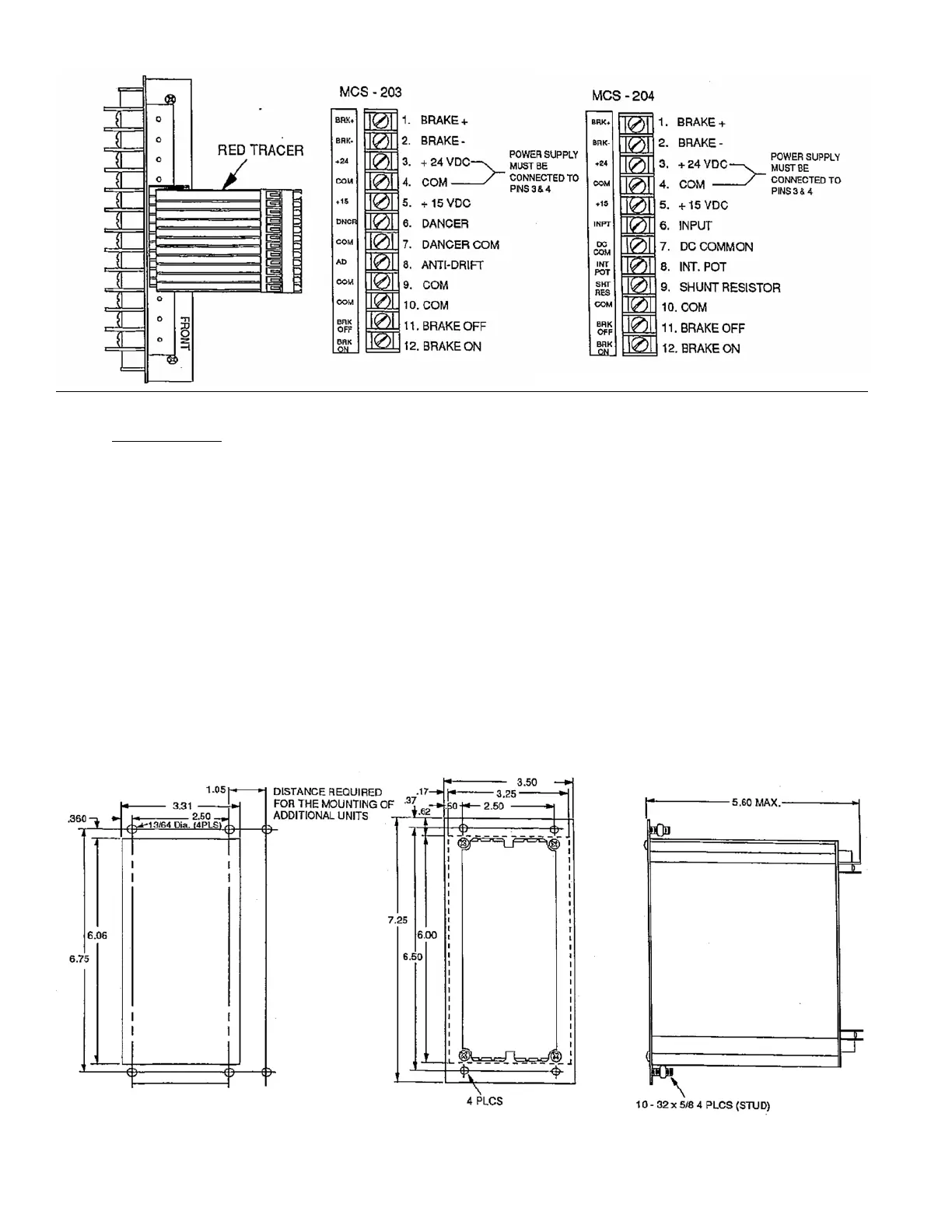
2. Using the dimensions shown in Figure 3,
page 6, cut an opening 3 5/16” x 6 1/16”
info the mounting panel for each housing
assembly.
3. Using the dimensions shown in Figures 3,
page 6, drill four (4) 13/64” mounting holes
for each housing to provide clearance for the
#10 mounting studs.
4. Slide the housing assemblies into the
mounting panel cutouts. Securely fasten the
housings to the mounting panel with the four
nuts on each housing.
5. Apply the terminal strip label to the housing
panel near the terminal block as shown in
Figure 5, page 7.
CAUTION: Be sure to apply the label in the proper
position with the brake (+) terminal at
the top.
The controls are now ready to be wired. Proceed to
the wiring section of this manual for the appropriate
instructions.
Figure 3. Panel mount cut-out dimensions Figure 4. Panel mount housing dimensions
Figure 2. Terminal strip label orientation

Related product manuals