EasyManua.ls Logo

Waterline essentials ESSGH60E - Hob Installation and Worktop Fitting; Worktop Cutout Specifications

Default Icon
20 pages
Print Icon
To Next Page IconTo Next Page
To Next Page IconTo Next Page
To Previous Page IconTo Previous Page
To Previous Page IconTo Previous Page
Loading...
Important Information
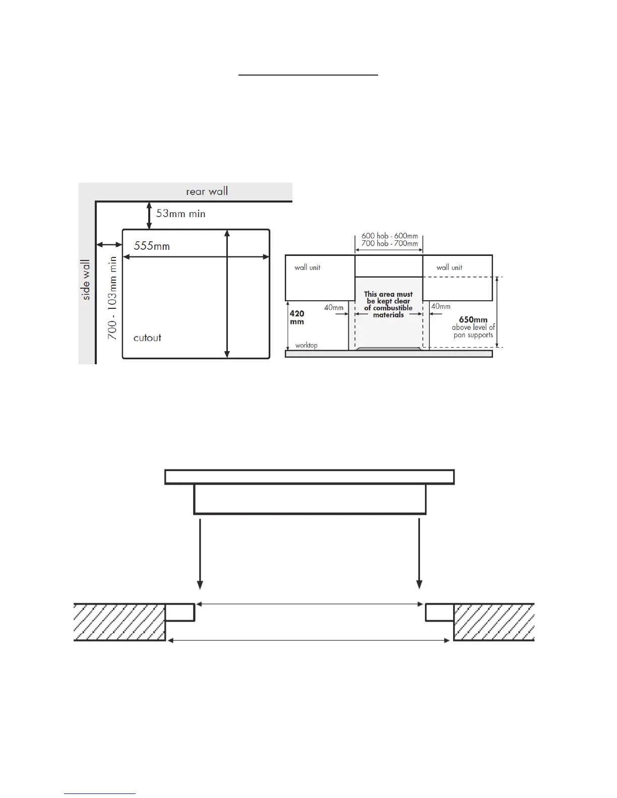
It is important when installing gas hobs, that the work top cut out is the same as is quoted
in this installation manual. If the cut out is too large, then battens must be tted to the
front, rear and sides - to correct the discrepancy and ensure the correct t. Please ensure
that if battens are tted they are level with the top surface of the work top. Please ensure
that the seal for the hob has full contact with the work top surface.
There are two ways to install the clamps,
depending on the thickness of the work top, please measure the thickness of your work
top and ensure that the correct method is used. Both methods are detailed in the instal-
lation manual.
Failure to follow these instructions can lead to exessive force being applied to the base-
tray, which results in the clearence between the control knob and the hob top pressing
being reduced. This can effect the operation of the gas control, and the ignition.
SPECIFIED DIMENSION WITH BATTENS
EXISTING DIMENSION WITHOUT BATTENS
BASE TRAY
Front control 485mm
Side control 490mm