EasyManua.ls Logo

WEST P6700 - Use of Shielded Cable; Noise Suppression at Source; Figure 9. Transient Suppression with Inductive Coils; Figure 10. Contact Noise Suppression

Default Icon
159 pages
Print Icon
To Next Page IconTo Next Page
To Next Page IconTo Next Page
To Previous Page IconTo Previous Page
To Previous Page IconTo Previous Page
Loading...
1
/
4
-DIN,
1
/
8
-DIN &
1
/
16
- DIN Controllers & Indicators - Product Manual
59305, Issue 5 – March 2005 Connections Page 13
Use of Shielded Cable
All analogue signals must use shielded cable. This will help eliminate electrical noise
induction on the wires. Connection lead length must be kept as short as possible keeping the
wires protected by the shielding. The shield should be grounded at one end only. The
preferred grounding location is at the sensor, transmitter or transducer.
Noise Suppression at Source
Usually when good wiring practices are followed, no further noise protection is necessary.
Sometimes in severe electrical environments, the amount of noise is so great that it has to be
suppressed at source. Many manufacturers of relays, contactors etc supply 'surge
suppressors' which mount on the noise source. For those devices that do not have surge
suppressors supplied, Resistance-Capacitance (RC) networks and/or Metal Oxide Varistors
(MOV) may be added.
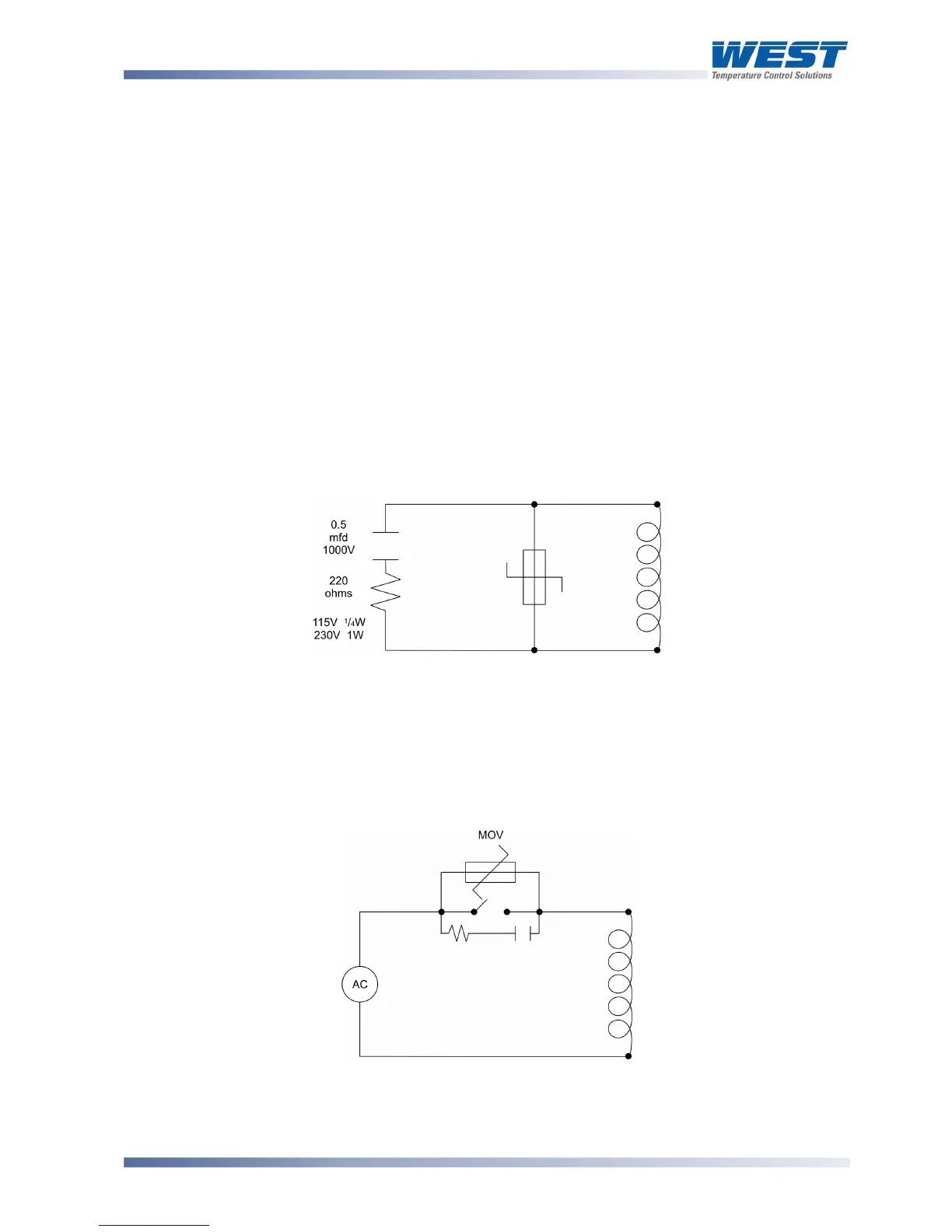
Inductive coils:- MOVs are recommended for transient suppression in inductive coils,
connected in parallel and as close as possible to the coil. Additional protection may be
provided by adding an RC network across the MOV.
Figure 9. Transient suppression with inductive coils
Contacts:- Arcing may occur across contacts when they open and close. This results in
electrical noise as well as damage to the contacts. Connecting a properly sized RC network
can eliminate this arc.
For circuits up to 3 amps, a combination of a 47 ohm resistor and 0.1 microfarad capacitor
(1000 volts) is recommended. For circuits from 3 to 5 amps, connect two of these in parallel.
Figure 10. Contact noise suppression

Table of Contents

Related product manuals