EasyManua.ls Logo

Western Airconditioning Epsilon Echos+ 9 - Page 36

Western Airconditioning Epsilon Echos+ 9
40 pages
Print Icon
To Next Page IconTo Next Page
To Next Page IconTo Next Page
To Previous Page IconTo Previous Page
To Previous Page IconTo Previous Page
Loading...
Epsilon Echos +
36
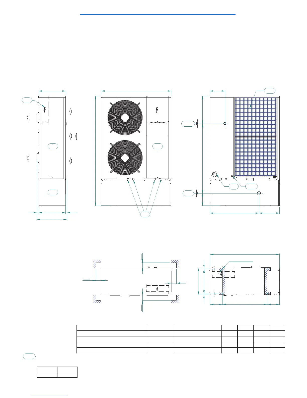
Dimensional diagram Epsilon Echos+
26-30 1PS
C413211 - A
"A"
CLEARENCES
G1
G2
G4
G3
FOOTPRINT
560
506
2050
1306
1300 518
O
9HOLES
1300
460
500
300
Denomination - Dimensional Drawing Drawing Rev.
DraftsmanDate
Scale
Checked by
di
Sheet
N.
of
Replace draw. Replaced by draw.
Weight [kg]
DIM.DRAWING EPSILON ECHOS PLUS 26-30 1PS
C413211/
A
BARBETTA
1
/
/
1
TURRI16/11/121:25
/
Code
MTE 56 rev. 04 date: 07/04/11
Reserved property, reproduction prohibited accordin to existent
laws.Copyright.
Rev. Dat
VIEW FROM "A"
Pm
Es
Ep
Rp
Lh
Rp
Uout
Uin
Cdh *
232,5
Uin Uout
G 1"1/4 F G 1"1/4 M
2020
282
300
600
900
NOTE
OPTIONAL (ø22 mm)
Cdh *
35
503 21,5
917 386
Rp
230
840 230
MODEL WEIGHT(Kg) OPERATING WEIGHT(Kg) G1(Kg) G2(Kg) G3(Kg) G4(Kg)
EPSILON ECHOS PLUS 26 CH_1PS 350 485 149 80 90 166
EPSILON ECHOS PLUS 30 CH_1PS 352 487 153 85 89 160
EPSILON ECHOS PLUS 26 HP_1PS 369 504 155 83 93 173
EPSILON ECHOS PLUS 30 HP_1PS 370 505 158 87 93 167