EasyManua.ls Logo

Whirlpool WDF110PABW3 - Wiring Diagram

Whirlpool WDF110PABW3
12 pages
Print Icon
To Next Page IconTo Next Page
To Next Page IconTo Next Page
To Previous Page IconTo Previous Page
To Previous Page IconTo Previous Page
Loading...
2
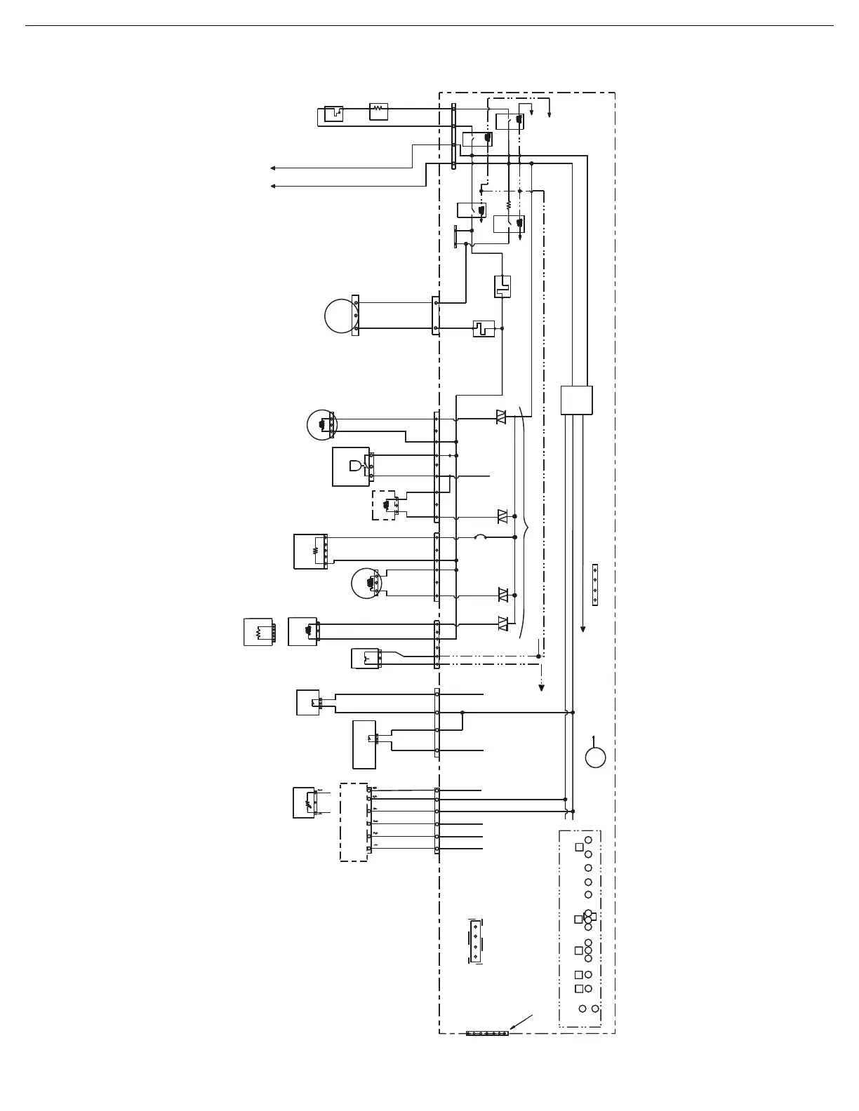
Wiring Diagram
Schematic shown with door switch and all other normally open contacts open.
*Denotes energy-efficient components. Do not substitute.
Micro Pin
Micro Pin
Htr-N
Relay
K4
Htr-L1
Relay
K2
4
32 1
P4
BU/W
BU/R
BK
W
Heater
Line
N
H. L. Stat
BK
W
Line
N
* Electronic Control
PC Board 6" (150 mm) x 3
³⁄₈
" (86 mm) max.
2-sided, PCB material CEM3
Motor Sense Circuit is different
for High and Low motors.
Micro Pin
Motor
Relay
K3
Pilot
Relay
K1
Sense
Micro
Pin
P5
2
1
P14
Fuse F1
Fuse
F2
Motor
Fuse
(Optional)
Turq. (LBU)
Turq. (LBU)
P14-1
P14-2
L1
N
1
2
3
1 PH Sync
Wash Motor
Pump
3 Watt
Power
Supply
VEE
VDD
Ref
(-12V)
(-5V)
(N)
Return line from -12V relay coils goes through door switch.
Load (current) sensing of drain triac, small triac loads, and vent for self diagnostics.
Door open detection
Overfill
Detection
BR
BR
BR
BR
BR
BR
P6-1
P6-3
P6-4
P6-6
P6-7
P6-9
P6
BU
BU
BU
BU
P7-1
P7-3
P7-4
P7-6
P7
P9
P11
P12
P9-3
P9-1
P9-5
P9-6
P11-2
P11-1
P11-3
P11-4
P12-2
P12-1
P12-3
P12-4
P12-5
P12-6
V
V
V
V
R
R
R
R
Y
Y
Y
Y
Y
Y
* Fill Valve
Overfill (Float)
Switch
Drain
Motor
P3 P1
P1
P1
P3
P3
Vent Wax
Motor
Some models
Spare Load
(Diverter)
Some Models
P5 P1
Door
Switch
P3
P1
P3
P3
P5
P1
P1
P1
Dispenser
Solenoid
or
Dispenser
Wax Motor
Spare
Sensor
Future
Models
Some models
Most models
Spare Sensor
(Diverter Position)
NTC
Thermistor
* O.W.I.
(NTC, Foam, and Turbidity Sensor)
or
NTC/Turbidity Sensor
Some models
Analog
Input
12V
Digital
Input
NTC
Input
Opt
Sig
Foam
Drive
Turbo
Drive
P2
12 34
In factory programming
(on top surface of PCB).
-12V
Beeper
Some models
VDO
Ref
Integrated User Interface
Programs
5 keys, 14 LEDs max. Max. possible
Option A Option B Start
Resume
Cancel
Drain
Status
GY/BU
Optional
Wide Bus Connector
Future Models
P3
1
2
3
4
5
6
7
Temporary connection port
for development tools (and
future service tools).

Related product manuals