EasyManua.ls Logo

Whirlpool WF2T201 - WF2 T221 Model Diagram

Whirlpool WF2T201
45 pages
Print Icon
To Next Page IconTo Next Page
To Next Page IconTo Next Page
To Previous Page IconTo Previous Page
To Previous Page IconTo Previous Page
Loading...
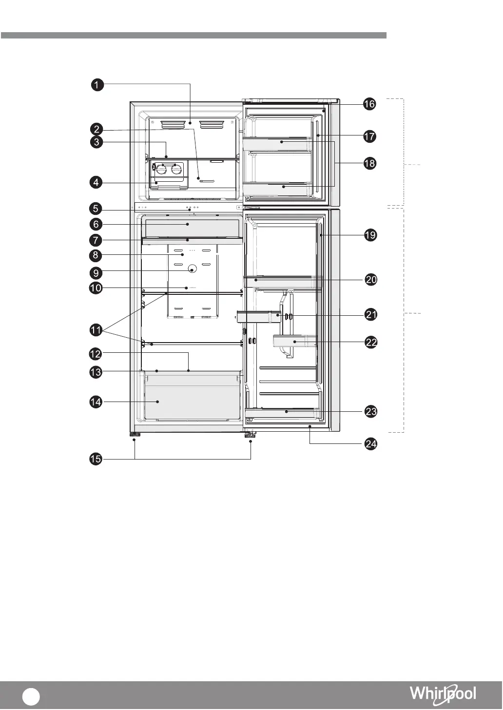
產品概述
雪櫃簡圖 (WF2T221)
2
1.
急凍室風道面板蓋
2.
急凍室溫度調節器
3.
急凍室強化玻璃防漏層架
4.
旋轉製冰格
5.
LED 燈
6.
易拉儲存格
7.
易拉儲存格
8.
冷藏室風道面板蓋
9.
冷藏室溫度調節鈕
10.
CLOUD FRESH除味脫臭系統
11.
冷藏室強化玻璃防漏層架
12.
濕度控制滑動擋塊
13.
蔬果保鮮室層架蓋
14.
蔬果保鮮室
15.
調節腳
16.
急凍室門
17.
18.
急凍室門門封
19.
急凍室門架
20.
冷藏室門封
21,22.
冷藏室上門架
蛋架 (在內)
23.
冷藏室下門架
冷藏室門
冷藏室
急凍室
24.
簡圖僅供參考,一切以見實物為準。
由於產品改進,您所購買的雪櫃可能與產品說明書介紹不完全一致,但不會影響產品之性能及使用方法,請放心使用。

Related product manuals