EasyManua.ls Logo

Widney RSW10KL - Installation Procedure; Unpacking, Positioning, and Wall Mounting

Widney RSW10KL
28 pages
Print Icon
To Next Page IconTo Next Page
To Next Page IconTo Next Page
To Previous Page IconTo Previous Page
To Previous Page IconTo Previous Page
Loading...
5
Diagram Bi
INSTALLATION PROCEDURE
9. UNPACKING
The Water heater is supplied in a separate carton. Care should be taken when unpacking to ensure there is no
damage to the product.
Included in the Water heater carton are :- Installation and User instructions, Gas isolation valve & 100mm of 15mm dia
Copper tube.
In a separate pack: Flue kit comprising of Inlet and outlet rigid tube Terminal Elbow - Clamping Rings (2)
Sealing Collars (2).
THE WATER HEATER MUST BE INSTALLED WITH THE SUPPLIED FLUE KIT
10. SELECTING THE POSITION
Decide where the heater is to be fixed taking into account the installation requirements required under the relevant
standards and sections 1, 2,3,12 of these instructions.
11. WALL MOUNTING
The Water Heater can either be mounted with the flue system exiting to the rear or side of the appliance. For
Wall mounting with flue to the rear refer to paragraph entitled ‘Flue installation to the rear’.
Materials around the flue system The outer flue will reach a maximum
temperature rise of 35
o
C. Care should be taken in ensuring that any materials
touching the outer flue are capable of withstanding this temperature for extended
periods. It is recommended that the rubber inner and outer seals are pushed into
the wall aperture before sealing. This will ensure that the outer flue pipe fits
centrally in the wall aperture.
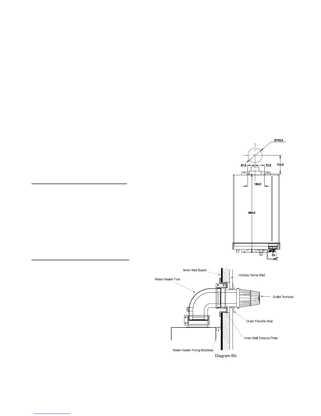
Flue installation to the side: See diagram Bi
The water heater should be mounted on a suitable wall with sufficient structural strength
to ensure adequate support.
1. Mark the position of the fixing holes and the outlet aperture in the wall as
indicated in diagram Bi. Ensure that the position of the flue outlet meets with the
requirements of the relevant standards and is located as detailed in section 2.
2. Cut the hole for the flue liner through the wall of the home.
3. Fix the flue system to the water heater see section 12.
4. Fix the water heater securely through the fixing brackets located at the base
and top of the unit.
5. Go to section 12.
Flue installation to the rear: See diagram Biii
This method of installation requires a fixing kit part
no. RSWFIX01. The fixing kit comprises of two fixing
brackets to replace the fixing brackets fitted to the
water heater and a wall closure plate.
The water heater should be mounted on a suitable
wall with sufficient structural strength to ensure
adequate support.
1. Mark the position of the fixing holes and the
outlet aperture in the wall as indicated in
diagram Bi. Ensure that the position of the
flue outlet meets with the requirements of
the relevant standards and is located as
detailed in section 2.
2. Cut the hole for the flue liner through the
wall of the home.
3. Align the closure plate with the hole in the
inner wall and mark around the closure plate.
4. Cut out the inner section of the wall to fully recess the inner wall closure plate diagram Biii.
5. Insert the closure plate into the wall opening and fix with suitable fixings.
6. Fix the flue system to the water heater see section 12.
7. Go to section 12.

Other manuals for Widney RSW10KL