EasyManua.ls Logo

Williams 5507332 - Page 10

Williams 5507332
48 pages
Print Icon
To Next Page IconTo Next Page
To Next Page IconTo Next Page
To Previous Page IconTo Previous Page
To Previous Page IconTo Previous Page
Loading...
Installing Your Furnace
10
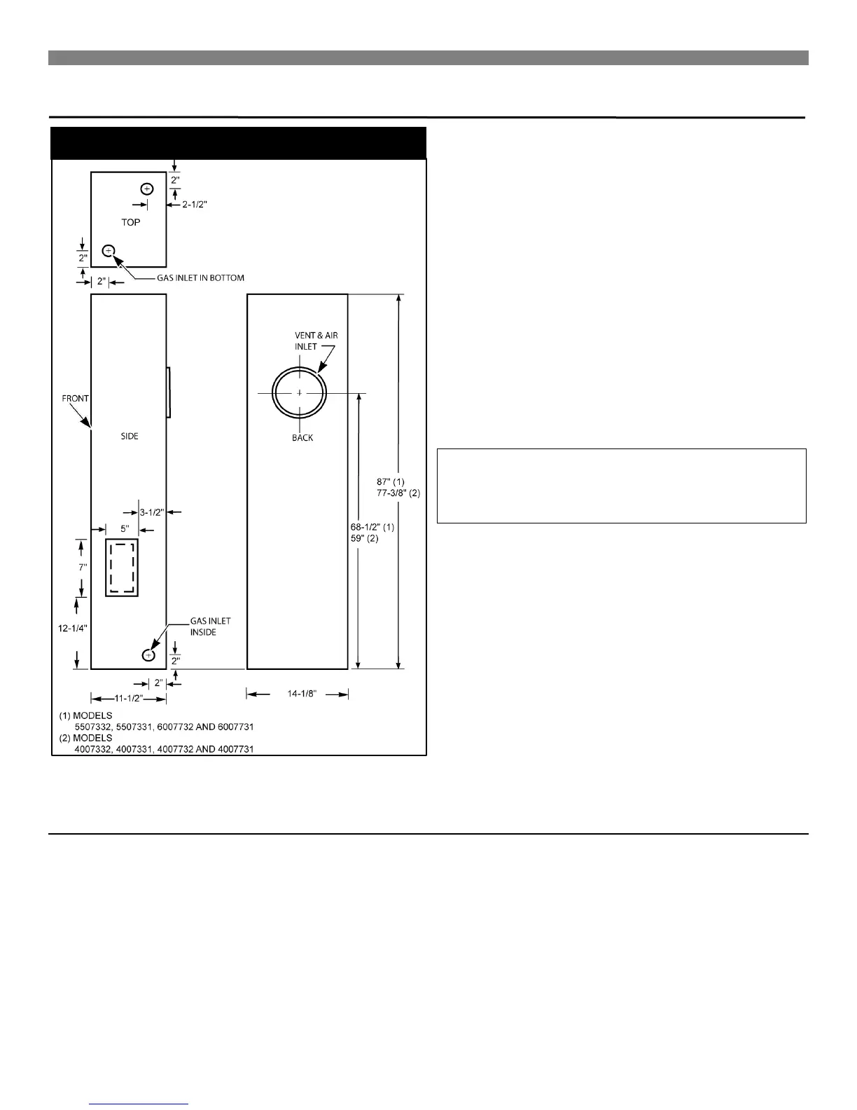
GAS AND ELECTRICAL SUPPLY OPENINGS
Holes must be drilled for the gas line and electrical supply. Holes
must be located from each side of furnace as shown in Fig. 10.
Decide whether the gas line will come through the floor or wall.
Drill a 1½ -inch hole in wall or floor as needed.
Gas line can be run at this time or done after furnace is mounted,
see section GAS SUPPLY AND PIPING, on Page 18.
The electrical supply opening should be at the lower portion of the
furnace, to match openings shown in Fig. 10. Mark ceiling wall
plate and drill holes. If not practical to run wiring from the attic, drill
holes through wall stud and run wires up through adjoining stud
space from crawl space or basement.
Run the electrical supply with the ground wire and thermostat
cable to the openings. Leave enough length to connect in the
junction box after the furnace is installed. See section "Electrical
Wiring," on page 19.
CAUTION: Do not run wire in any location where it
might be damaged. Avoid splicing thermostat wire
unless the spliced wires are properly cleaned,
soldered, and taped.
Offset Wall Installation
To mount the wall furnace on an offset wall, the area behind the
furnace must be made flush or flat.
Use lumber (2"x 4"s, 2"x 6"s etc.) to make the surface flush with
other portion of wall.
Use sheet rock or paneling etc. to finish area.
Follow procedures under Surface Mount Installation.
FIGURE 10 Gas & Electrical Openings

Related product manuals