EasyManua.ls Logo

Williams 5507332 - Forsaire Hardwire Accessory Installation; Installation Instructions; Accessory Summary

Williams 5507332
48 pages
Print Icon
To Next Page IconTo Next Page
To Next Page IconTo Next Page
To Previous Page IconTo Previous Page
To Previous Page IconTo Previous Page
Loading...
Forsaire Hardwire Accessory - 9940
Installation Instructions
This Kit is for use with Models: 3508331; 3508332; 3508731; 3508732; 4007331; 4007332; 4007731; 4007732;
5008731; 5008732; 5507331; 5507332; 5508331; 5508332; 6008531; 6008532;
6007731; 6007732; 6508731; 6508732
WARNING: Danger of bodily injury. Turn off electric power supply at disconnect switch, fuse box or service
panel before working on the furnace.
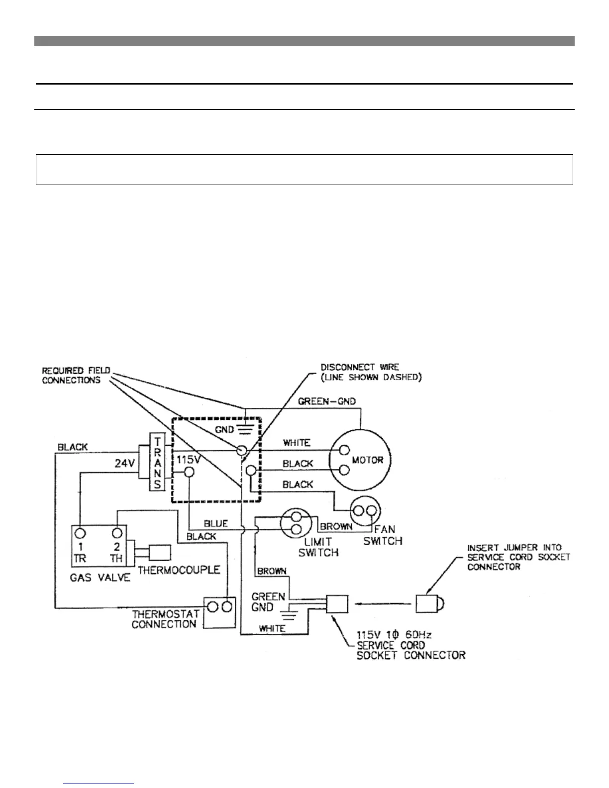
SUMMARY: This accessory converts Williams' Forsaire Counterflow furnaces using the electric service cord provided, to a hardwired,
permanent electrical connection.
If this furnace is equipped or has been previously installed and operated using the service power cord, disconnect the cord at the
receptacle connector located at the base of the furnace and remove the cord completely from the furnace.
Following the wiring diagram below, make all the necessary wiring connections from an outside electrical source. All electrical work
must conform to your local codes and ordinances or in their absence, with National Electrical Code, ANSI/NFPA 70 or in Canada,
Canadian Electrical Code C22.1. If you are not familiar with wiring codes in general, have a competent electrician do this job. Be sure
this accessory is of the type and design required for use with your furnace.
The 40077 model series with a single speed motor is shown in the wiring diagram below. The required field wiring connections are
applicable to all models listed above. For internal wiring connections to your model, refer to the wiring diagram attached to the furnace.

Related product manuals