EasyManua.ls Logo

Williams 6502922A - Installing Your Heater

Williams 6502922A
32 pages
Print Icon
To Next Page IconTo Next Page
To Next Page IconTo Next Page
To Previous Page IconTo Previous Page
To Previous Page IconTo Previous Page
Loading...
Installing Your Heater
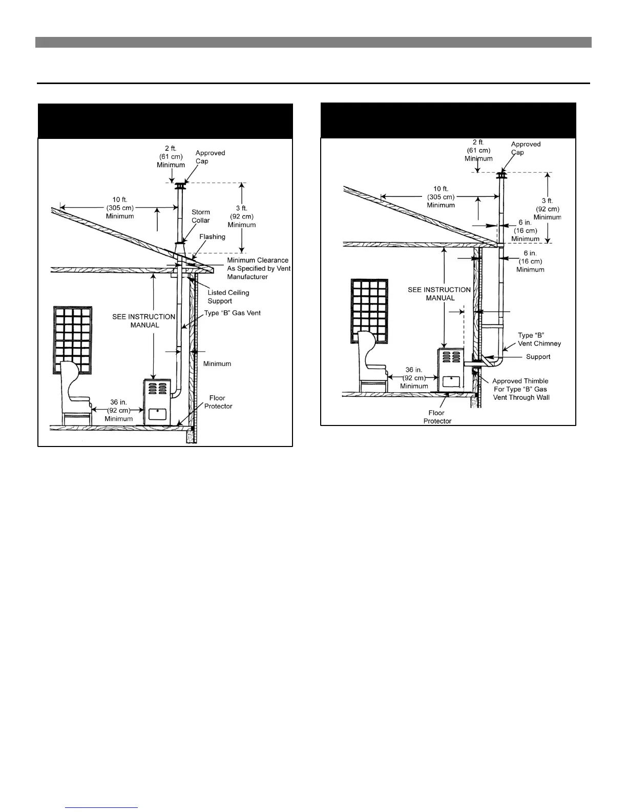
FIGURE 15 Straight Up Venting With Type
“B” Gas Vent
FIGURE 16 Venting Into An Outside Type
“B” Gas Vent
3 in.
(7 cm)
See Figure
1 “C”

Related product manuals