EasyManua.ls Logo

Wolf CTWH36 - Page 37

Wolf CTWH36
84 pages
Print Icon
To Next Page IconTo Next Page
To Next Page IconTo Next Page
To Previous Page IconTo Previous Page
To Previous Page IconTo Previous Page
Loading...
37
W OLF I NTEGRATED C OOKTOPS
PLANNING
INFORMATION
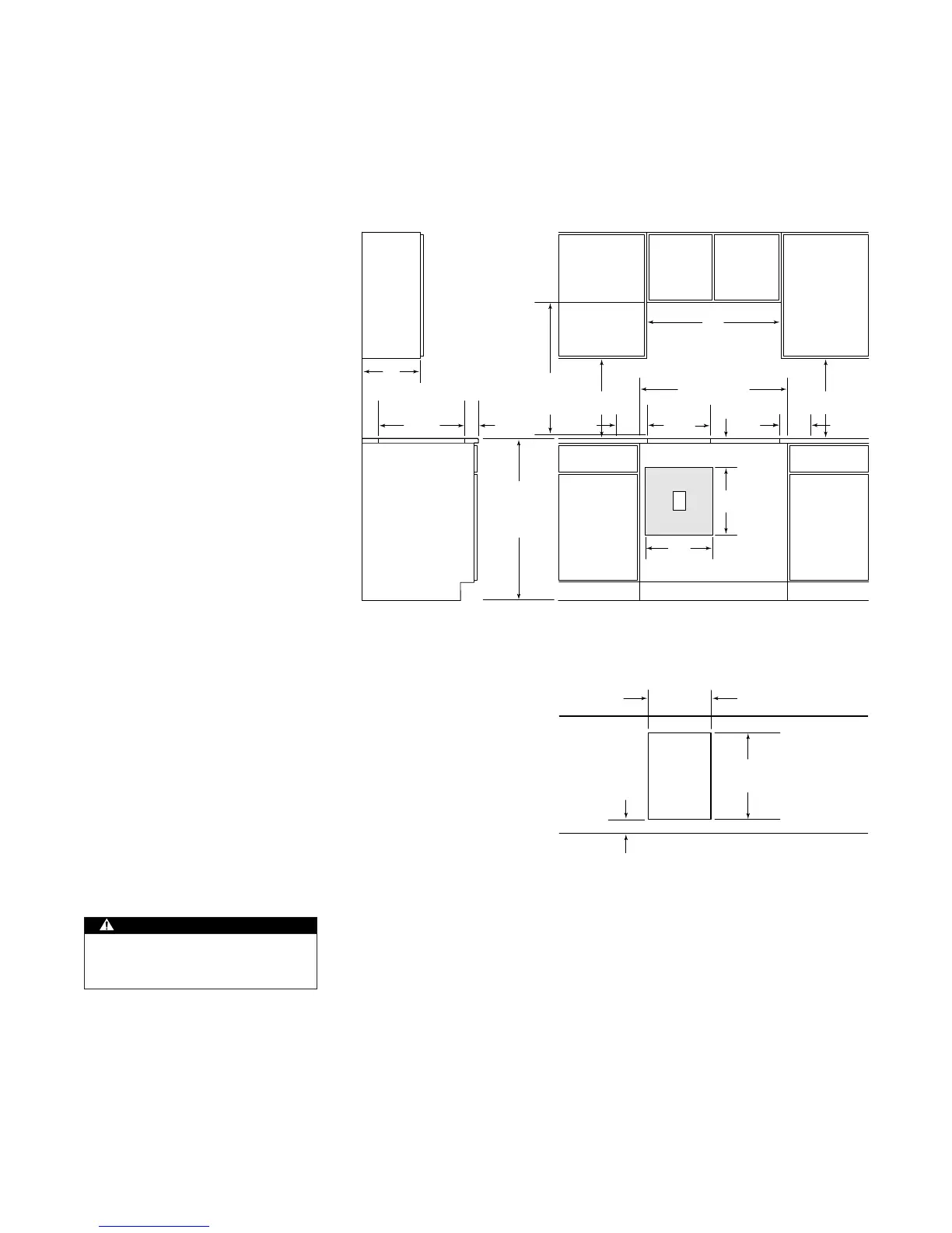
The illustrations provide the overall
size and finished cut-out dimensions
that you need to plan for in your
installation.
IMPORTANT NOTE: When multiple
15" (381) cooktop modules are
installed side by side, refer to the
countertop cut-out dimensions on
page 35.
This cooktop can accommodate the
Wolf downdraft system, a Wolf
chimney or Pro Series hood. When
installing a ventilation hood, refer to
the specific requirements of the hood
for the minimum dimension to
cooking surface. Refer to pages 60-82
for ventilation specifics.
Electrical Requirements
The Wolf electric grill cooktop
requires a separate, grounded 4-wire
240V, 15 amp service with its own
circuit breaker. The unit is provided
with a 4' (1.2 m) flexible 3-wire
conduit for connection at the electri-
cal supply. Locate electrical within the
shaded area shown in the illustration.
At 240V this cooktop is rated at 2.8
Kw.
You must follow all National Electrical
Code regulations. In addition, be
aware of local codes and ordinances
when installing your service.
30"
(762)
13"
(330)
33" (838)
RECOMMENDED
CABINET WIDTH
E
6
1
/4"
(159)
15"
(381)
15"
(381)
19
1
/4" (489)
COOKTOP CUT-OUT
DEPTH
2
1
/2"min
(64)
14" (356)
CUT-OUT
WIDTH
18"
(457)
7"**
(178)
18"
(457)
7"**
(178)
24" OR 30"*
(610 or 762)
TO COOKING
SURFACE
NOTE: Application shown allows for installation of two 15" (381) modules side-by-side.
* Minimum 24" (610) from protected cabinet or 30" (762) from unprotected cabinet to cooking surface.
** Minimum clearance from side edge of cooktop cut-out to combustible surface up to 18" (457) above cooking surface.
36"(914)
STANDARD
FLOOR TO
COUNTER
HEIGHT
CABINET SIDE VIEW
Cut-out dimensions and electrical placement for electric grill cooktop.
FRONT OF COUNTERTOP
2
1
/2"min
(64)
19
1
/4" (489)
COOKTOP
CUT-OUT DEPTH
14" (356)
COOKTOP
CUT-OUT
WIDTH
Dimensions in parentheses are in millimeters unless otherwise specified.
WARNING
This cooktop is intended for
indoor use.

Other manuals for Wolf CTWH36

Related product manuals