EasyManua.ls Logo

Wolf DD30 - Page 35

Wolf DD30
44 pages
Print Icon
To Next Page IconTo Next Page
To Next Page IconTo Next Page
To Previous Page IconTo Previous Page
To Previous Page IconTo Previous Page
Loading...
wolfappliance.com | 7
E
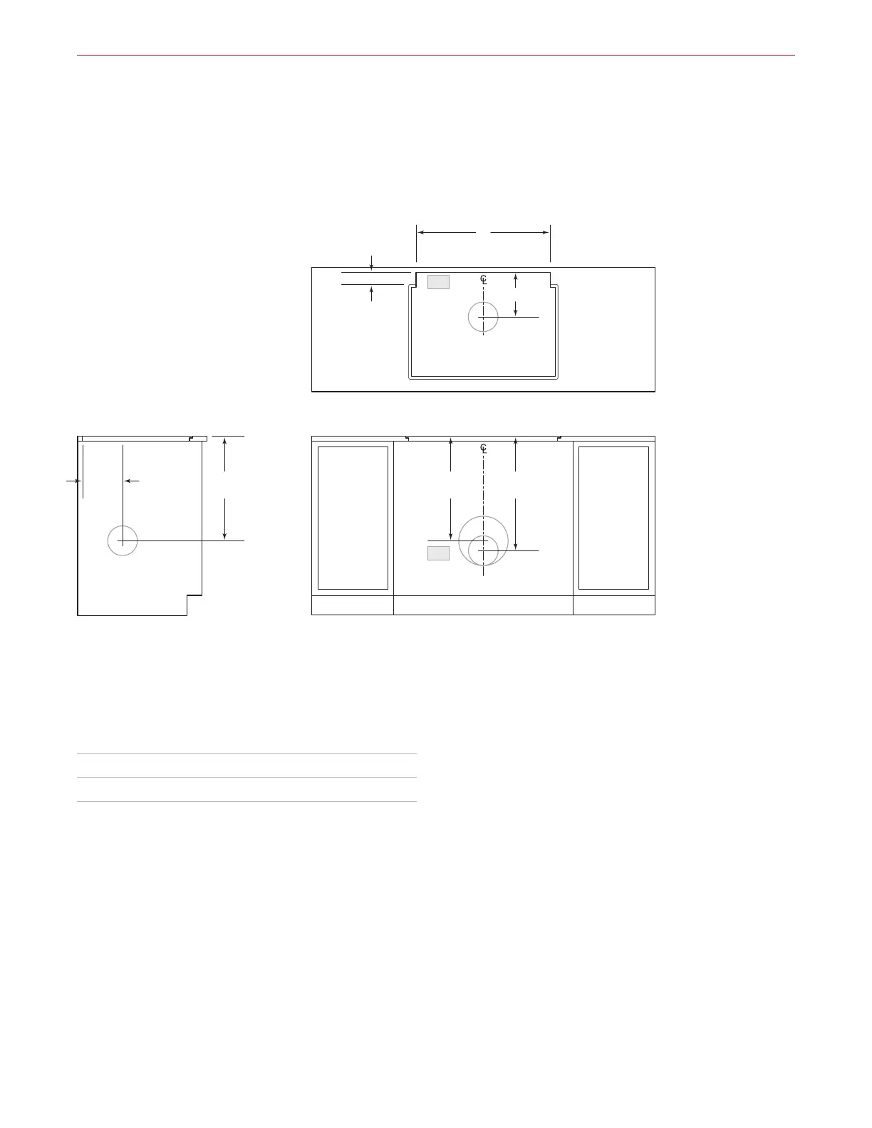
VUE DE FACEVUE DE PROFIL
*6 po (152) de l’arrière de la découpe du comptoir lorsque la soufflerie interne est installée à l’arrière.
REMARQUE : soufflerie interne ronde de 6 po (152), évacuation latérale, arrière ou inférieure. Soufflerie en ligne et à distance ronde de
10 po (254), évacuation arrière. La ligne centrale indique le centre de la découpe de l’aspiration descendante.
21
1
/4 po
(540)
21
1
/4 po
(540)
8
1
/4 po
(210)*
DÉCOUPE DE LA SURFACE
DE CUISSON
2
5
/16 po
(
59
)
VUE DE DESSUS
23
3
/8 po
(594)
8
1
/4 po (210)*
L
LARGEUR DE LA DÉCOUPE DE
L’ASPIRATION DESCENDANTE
E
Aspiration descendante
INSTALLATION AVEC LA TABLE DE CUISSON INSTALLEE DE FLUSH
LARGEUR DE LA DÉCOUPE L
DD30 27⁄ po (699)
DD36 33⁄ po (851)
Spécifications

Related product manuals