EasyManua.ls Logo

Wolf DD30 - Page 36

Wolf DD30
44 pages
Print Icon
To Next Page IconTo Next Page
To Next Page IconTo Next Page
To Previous Page IconTo Previous Page
To Previous Page IconTo Previous Page
Loading...
8 | Service à la clientèle de Wolf 800.222.7820
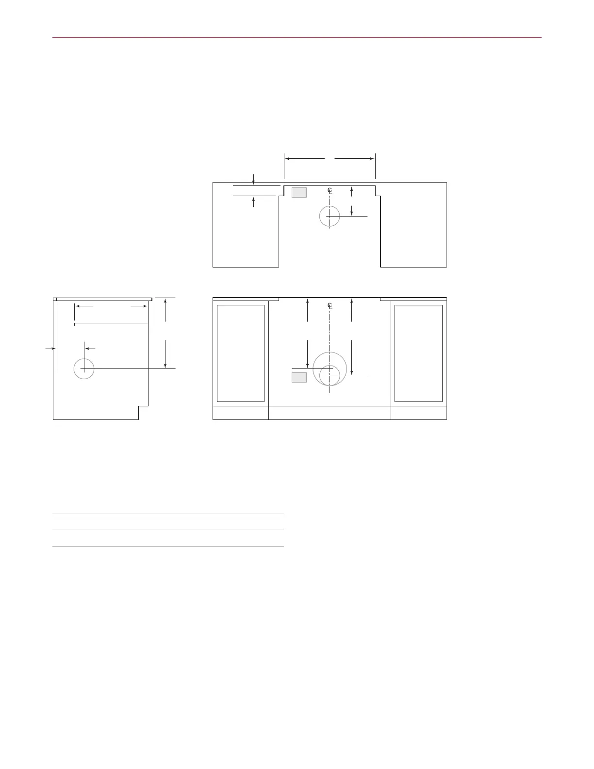
VUE DE PROFIL
19 po (483)
PROFONDEUR DE
LA PLATE-FORME
VUE DE FACE
*6 po (152) de l’arrière de la découpe du comptoir lorsque la soufflerie interne est installée à l’arrière.
REMARQUE : soufflerie interne ronde de 6 po (152), évacuation latérale, arrière ou inférieure. Soufflerie en ligne et à distance ronde de
10 po (254), évacuation arrière. La ligne centrale indique le centre de la découpe de l’aspiration descendante.
21
1
/4 po
(540)
8
1
/4 po
(210)*
VUE DE DESSUS
L
LARGEUR DE LA DÉCOUPE DE
L’ASPIRATION DESCENDANTE
8
1
/4 po (210)*
21
1
/
4
po
(540)
23
3
/
8
po
(594)
OUVERTURE DU DESSUS
DE CUISINIÈRE
2
11
/16 po (68)
E
E
Aspiration descendante
INSTALLATION AVEC DESSUS DE CUISINIÈRE À BRÛLEUR SCELLÉ
LARGEUR DE LA DÉCOUPE L
DD30 27⁄ po (699)
DD36 33⁄ po (851)
Spécifications

Related product manuals