EasyManua.ls Logo

Wolf DD30 - Rangetop Cutouts

Wolf DD30
44 pages
Print Icon
To Next Page IconTo Next Page
To Next Page IconTo Next Page
To Previous Page IconTo Previous Page
To Previous Page IconTo Previous Page
Loading...
8 | Wolf Customer Care 800.222.7820
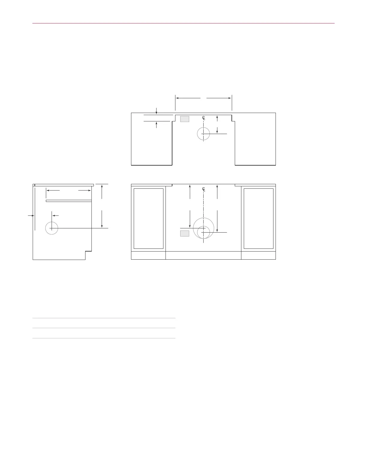
FRONT VIEWSIDE VIEW
19" (483)
PLATFORM DEPTH
FRONT VIEWSIDE VIEW
*6" (152) back from countertop cutout when internal blower is rear mounted.
NOTE: Internal blower 6"
(152) round, side, rear, or bottom discharge. In-line and remote blower 10" (254) round, rear discharge.
Centerline indicates center of downdraft cutout.
21
1
/4"
(540)
8
1
/4"
(210)*
TOP VIEW
W
DOWNDRAFT
CUTOUT WIDTH
8
1
/4" (210)*
21
1
/
4
"
(540)
23
3
/
8
"
(594)
RANGETOP OPENING
2
11
/16" (68)
E
E
Downdraft
INSTALLATION WITH SEALED BURNER RANGETOP
CUTOUT WIDTH W
DD30 27⁄" (699)
DD36 33⁄" (851)
Specifications

Related product manuals