EasyManua.ls Logo

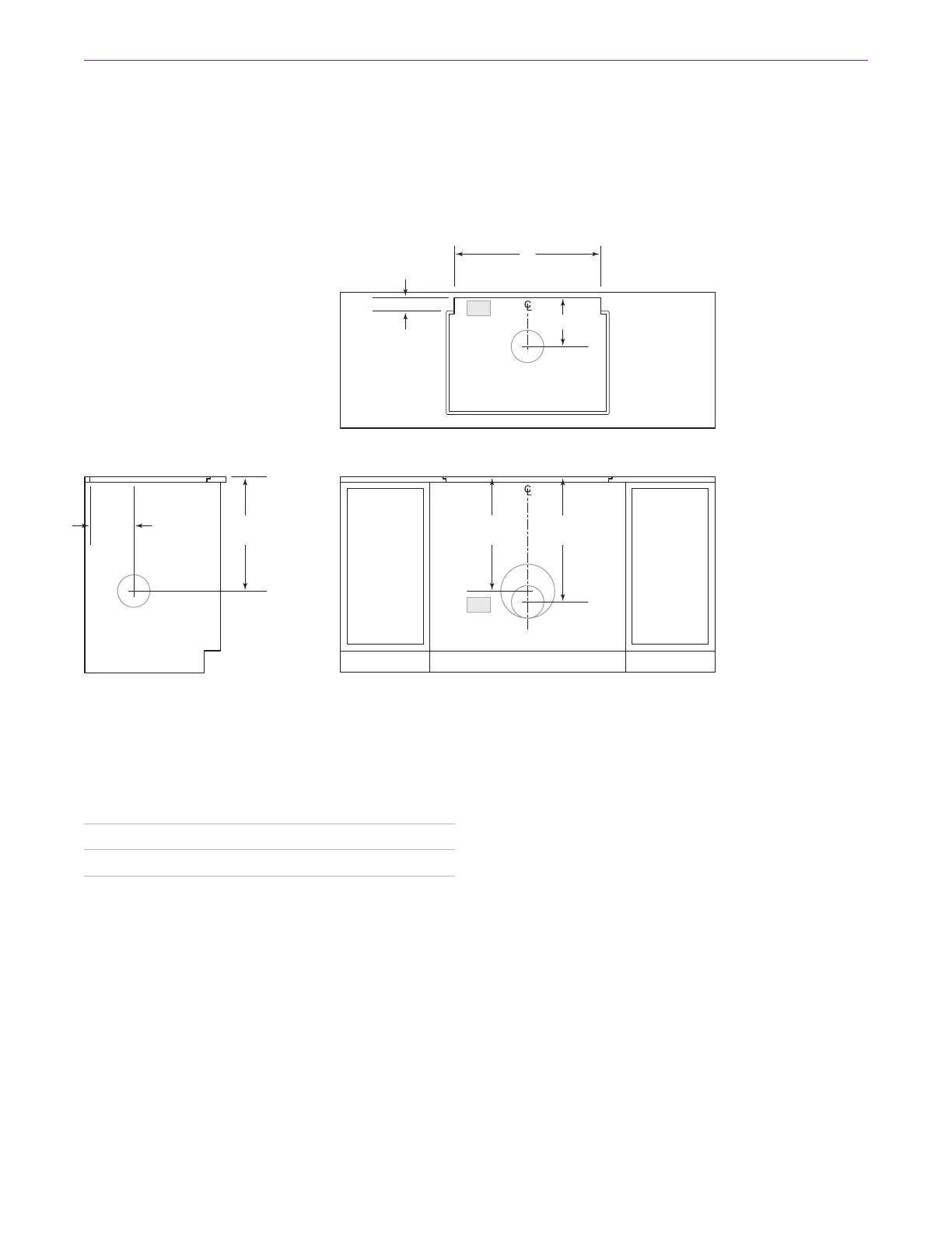
Wolf DD30 - Flush Cooktop Cutouts

Wolf DD30
44 pages
Print Icon
To Next Page IconTo Next Page
To Next Page IconTo Next Page
To Previous Page IconTo Previous Page
To Previous Page IconTo Previous Page
Loading...
wolfappliance.com | 7
E
FRONT VIEWSIDE VIEW
*6" (152) back from countertop cutout when internal blower is rear mounted.
NOTE: Internal blower 6"
(152) round, side, rear, or bottom discharge. In-line and remote blower 10" (254) round, rear discharge.
Centerline indicates center of downdraft cutout.
21
1
/4"
(540)
21
1
/4"
(540)
8
1
/4"
(210)*
23
3
/8"
(594)
8
1
/4" (210)*
W
DOWNDRAFT
CUTOUT WIDTH
E
COOKTOP CUTOUT
TOP VIEW
2
5
/
16
"
(
59
)
Downdraft
INSTALLATION WITH FLUSH INSTALLED COOKTOP
CUTOUT WIDTH W
DD30 27⁄" (699)
DD36 33⁄" (851)
Specifications

Related product manuals