EasyManua.ls Logo

Wolf DF304 - Page 10

Wolf DF304
20 pages
Print Icon
To Next Page IconTo Next Page
To Next Page IconTo Next Page
To Previous Page IconTo Previous Page
To Previous Page IconTo Previous Page
Loading...
10
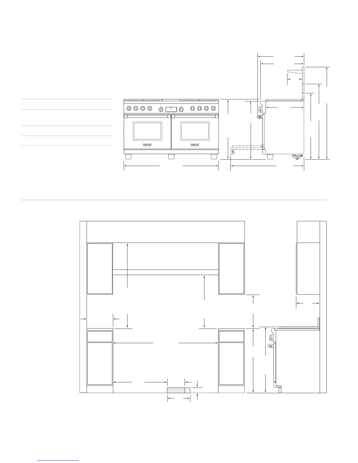
13"
(330)
LOCATION OF
ELECTRICAL
36"
(914)
36
7
/8"
(937) TO
COOKING
SURFACE
VENTILATION HOOD
LOCATION OF GAS AND
ELECTRICAL EXTENDS 3" (76)
ON FLOOR FROM BACK WALL
3
1
/4"
(83)
31"
(787)
10" (254)
LOCATION
OF GAS
SUPPLY
60
1
/4" (1530)
FINISHED ROUGH OPENING WIDTH
18"min (457)
TO COUNTERTOP
30"min (762) TO
36"max (914)
TO BOTTOM OF
VENTILATION HOOD
36"min (914)
COUNTERTOP
TO COMBUSTIBLE
MATERIALS
44"min (1118)
FOR CHARBROILER
ISLAND INSTALLATIONS: 12" (305) MINIMUM
CLEARANCE FROM BACK OF RANGE TO
COMBUSTIBLE REAR WALL ABOVE COUNTERTOP
0" (0) TO NON-COMBUSTIBLE MATERIALS
13" max
(330)
6"min (152)
TO
COMBUSTIBLE
MATERIALS
(BOTH SIDES)
W O L F D UA L F U E L R A N G E S
6
0
1
/8" (1527)
OVERALL WIDTH
41
7
/8"
(1064)
WITH 5"
RISER
4
6
7
/8"
(1191)
WITH 10"
RISER
56
7
/8"
(1445)
WITH 20"
RISER
47" (1194)
24
1
/4"
(
616)
2
7
1
/2" (699)
9
1
/4"
(235)
29
1
/2" (749)
OVERALL DEPTH
LEGS AND CASTERS ALLOW
2
1
/8" (54) HEIGHT ADJUSTMENT
35
7
/8"
(
911)
36
7
/8"
(937)
OVERALL
HEIGHT TO
COOKING
SURFACE
I N S TA L L AT I O N S P E C I F I C AT I O N S
O V E R A L L D I M E N S I O N S
Overall Width 60
1
/8" (1527)
Overall Height
(to cooking surface) 36
7
/8" (937)
Overall Depth 29
1
/2" (749)
Opening Width 60
1
/4" (1530)
Dimensions may vary to
±
1
/8" (3).
6 0 " ( 1 5 2 4 ) D U A L F U E L R A N G E S
IMPORTANT NOTE:
In non-island appli-
cations, a minimum
10" (254) riser is
required for all 60"
(1524) models
installed against a
combustible surface.
The island trim and
5" (127) riser may
only be used against
a non-combustible
surface.

Other manuals for Wolf DF304

Related product manuals