EasyManua.ls Logo

Wolf DF304 - Page 8

Wolf DF304
20 pages
Print Icon
To Next Page IconTo Next Page
To Next Page IconTo Next Page
To Previous Page IconTo Previous Page
To Previous Page IconTo Previous Page
Loading...
8
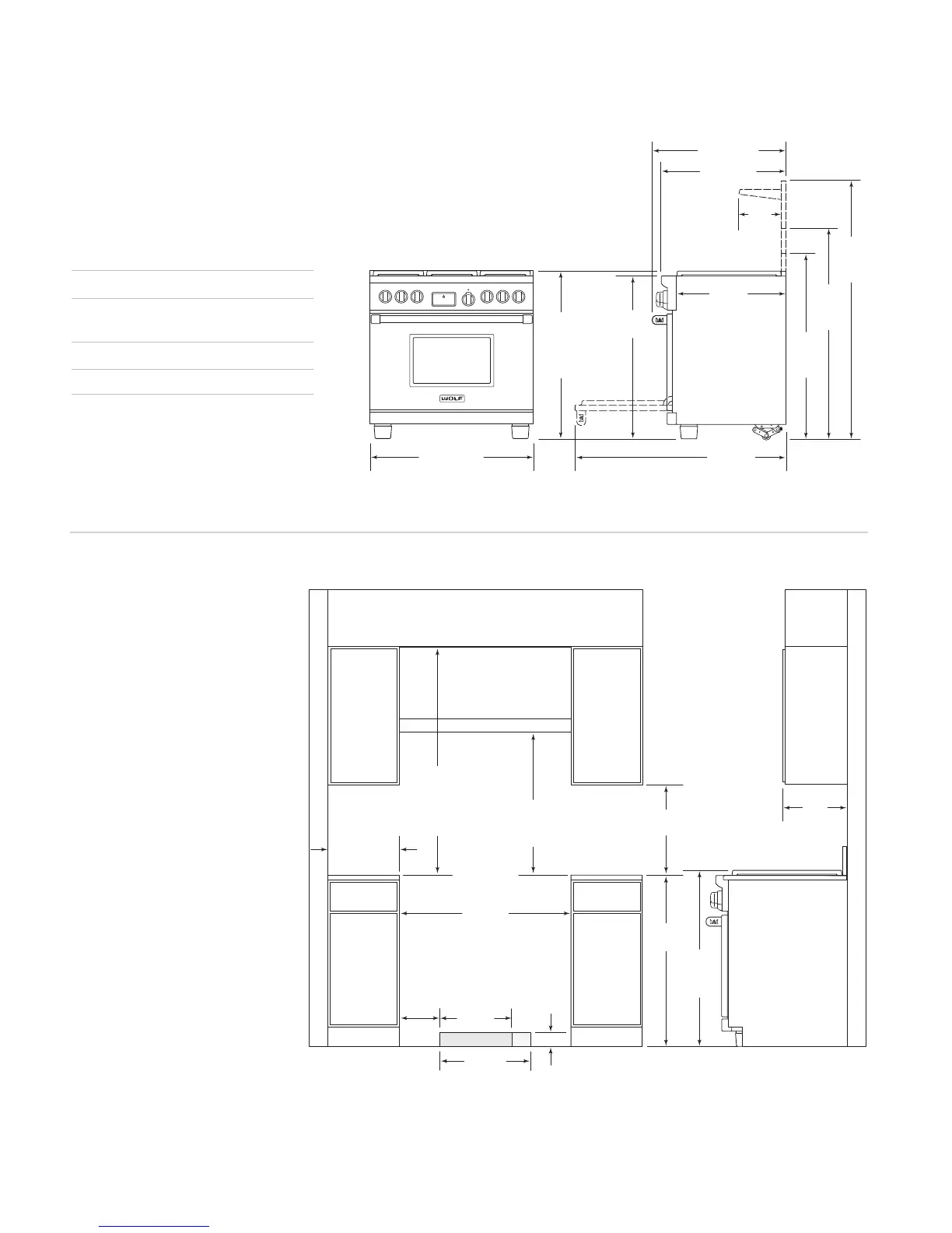
W O L F D UA L F U E L R A N G E S
19" (483)
LOCATION OF
ELECTRICAL
36"
(914)
36
7
/8"
(937) TO
COOKING
SURFACE
VENTILATION HOOD
18"min (457)
TO COUNTERTOP
LOCATION OF GAS AND
ELECTRICAL EXTENDS 3" (76)
ON FLOOR FROM BACK WALL
36" (914)
FINISHED ROUGH OPENING WIDTH
3
1
/4"
(83)
8
1
/2"
(216)
15" (381)
LOCATION
OF GAS
SUPPLY
30"min (762) TO
36"max (914)
TO BOTTOM OF
VENTILATION HOOD
36"min (914)
COUNTERTOP
TO COMBUSTIBLE
MATERIALS
44"min (1118)
FOR CHARBROILER
ISLAND INSTALLATIONS: 12" (305) MINIMUM
CLEARANCE FROM BACK OF RANGE TO
COMBUSTIBLE REAR WALL ABOVE COUNTERTOP
0" (0) TO NON-COMBUSTIBLE MATERIALS
13" max
(330)
6"min (152)
TO
COMBUSTIBLE
MATERIALS
(BOTH SIDES)
35
7
/8" (911)
OVERALL WIDTH
4
1
7
/8"
(
1064)
W
ITH 5"
RISER
46
7
/8"
(1191)
WITH 10"
RISER
56
7
/8"
(1445)
WITH 20"
RISER
47" (1194)
24
1
/4"
(616)
27
1
/2" (
699)
9
1
/4"
(
235)
2
9
1
/2" (749)
OVERALL DEPTH
L
EGS AND CASTERS ALLOW
2
1
/8" (54) HEIGHT ADJUSTMENT
35
7
/8"
(
911)
36
7
/8"
(
937)
OVERALL
HEIGHT TO
COOKING
SURFACE
I N S TA L L AT I O N S P E C I F I C AT I O N S
O V E R A L L D I M E N S I O N S
Overall Width 35
7
/8" (911)
Overall Height
(to cooking surface) 36
7
/8" (937)
Overall Depth 29
1
/2" (749)
Opening Width 36" (914)
Dimensions may vary to
±
1
/8" (3).
3 6 " ( 9 1 4 ) D U A L F U E L R A N G E S
IMPORTANT NOTE:
In non-island appli-
cations, a minimum
5" (127) riser is
required for Model
DF366 and minimum
10" (254) riser
required for Models
DF364C and DF364G
installed against a
combustible surface.
The island trim and
5" (127) riser may
only be used against
a non-combustible
surface for Models
DF364C and DF364G.

Other manuals for Wolf DF304

Related product manuals