EasyManua.ls Logo

Wolf DF486C - Page 6

Wolf DF486C
12 pages
Print Icon
To Next Page IconTo Next Page
To Next Page IconTo Next Page
To Previous Page IconTo Previous Page
To Previous Page IconTo Previous Page
Loading...
6
|
Wolf Customer Care 800.222.7820
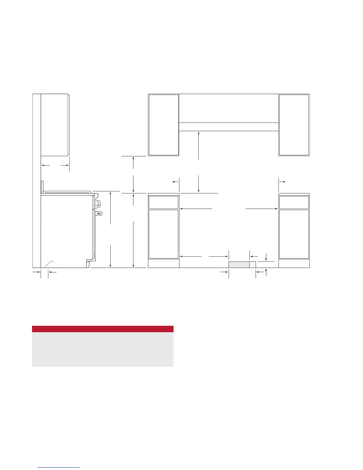
SPECIFICATIONS
Dual Fuel Range
INSTALLATION
13" (330)
ELECTRICAL
OPENING WIDTH
A
3
1
/4" (83)
10" (254)
GAS
*Minimum clearance from rough opening to combustible materials up to 18" (457) above countertop.
**36"
(914) minimum clearance, 44" (1118) for charbroiler, from countertop to combustible materials without ventilation hood.
NOTE: For island installations, 12"
(305) minimum clearance from back of range to combustible rear wall above countertop.
6" (152) TO
COMBUSTIBLE*
6" (152) TO
COMBUSTIBLE*
18" (457) min
36" (914)
FLOOR TO
COUNTERTOP
36
7
/8"
(937) TO
COOKING
SURFACE
13" (330)
max
2
1
/4"
(57)
LOCATION OF GAS AND
ELECTRICAL EXTENDS
ON FLOOR
FRONT VIEWSIDE VIEW
30" (762)
TO
36" (914)
TO BOTTOM OF
VENTILATION HOOD**
DUAL FUEL RANGE
WIDTH OPENING WIDTH A
30" Range 30" (762) 8
1
/2" (216)
36" Range 36" (914) 13
1
/2" (343)
48" Range 48" (1219) 24" (610)
60" Range 60
1
/4" (1530) 31" (787)

Other manuals for Wolf DF486C

Related product manuals