EasyManua.ls Logo

Wolf ICBCSO30CMS - Page 12

Wolf ICBCSO30CMS
20 pages
Print Icon
To Next Page IconTo Next Page
To Next Page IconTo Next Page
To Previous Page IconTo Previous Page
To Previous Page IconTo Previous Page
Loading...
6
|
Atención al cliente de Wolf 800.222.7820
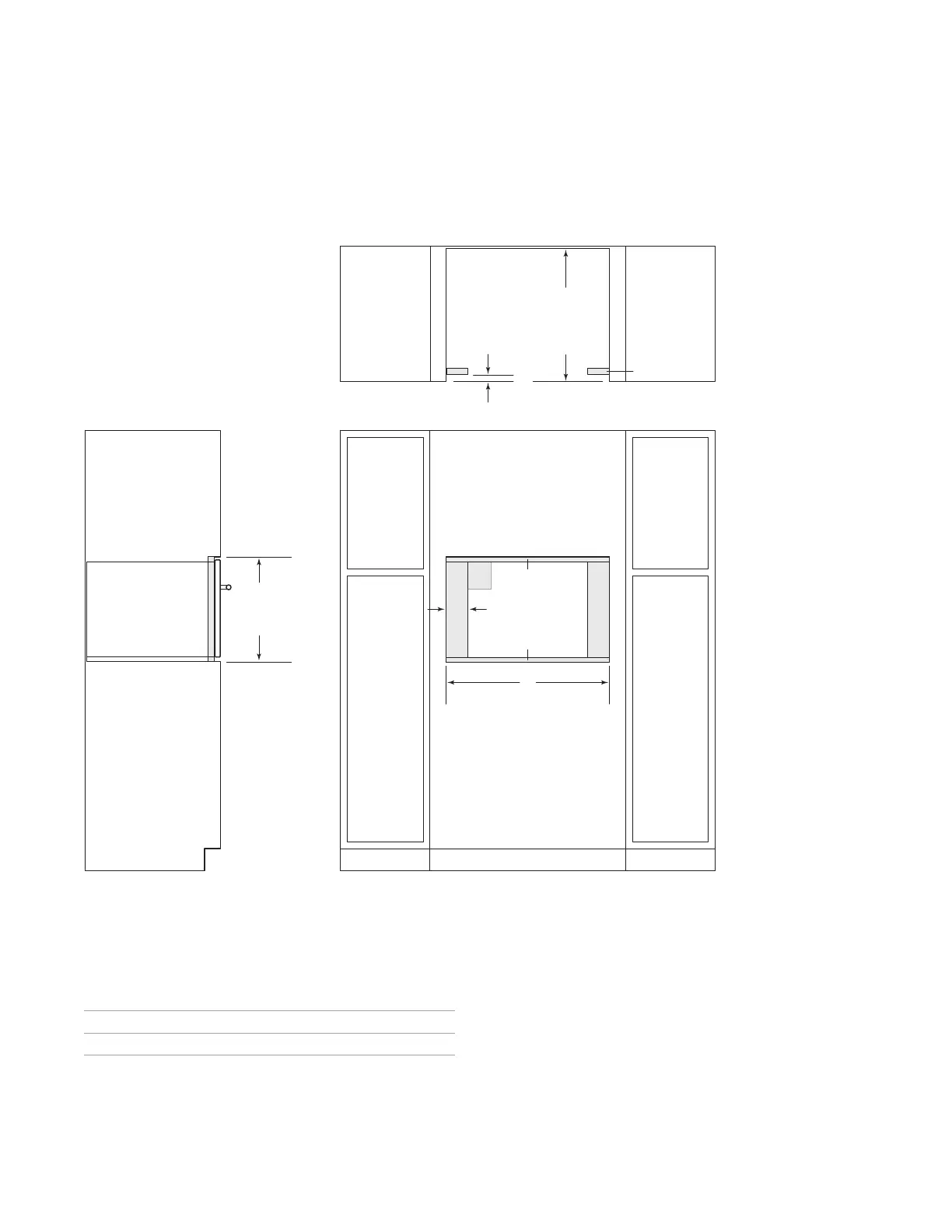
ESPECIFICACIONES
Horno de vapor de convección
INSTALACIÓN EMPOTRABLE
ANCHO DE ABERTURA
ANCHO (W) A
Modelo de 24" 23
3
/4" (603)
13
/16" (21)
Modelo de 30" 30
1
/8" (765) 4" (102)
E
W
ANCHO DE LA
INSTALACIÓN EMPOTRABLE**
FRONT VIEW
VIST
A LATERAL
24" (610)
PROFUNDIDAD
DE LA
INSTALACIÓN
EMPOTRABLE
7
/
8
"
(22)
*Será visible y debe tener un acabado que haga juego con los gabinetes.
**Dimensión mínima proporciona revela
.
18
1
/8"
(460)
ALTURA
EMPOTRABLE**
5
/16"(8)
1
/8" (3)
A
VISTA SUPERIOR
CORNAMUSAS
TERMINADAS*

Related product manuals