EasyManua.ls Logo

Wolf ICBCT15G/S - Page 23

Wolf ICBCT15G/S
76 pages
Print Icon
To Next Page IconTo Next Page
To Next Page IconTo Next Page
To Previous Page IconTo Previous Page
To Previous Page IconTo Previous Page
Loading...
457 mm mín.
914 mm
DEL SUELO A
LA ENCIMERA
762 mm mín.
ENCIMERA HASTA
L
OS MATERIALES
INFLAMABLES
762 mm APERTURA DEL HORNO
102 mm
254 mm
89 mm
E
CONSULTAR CORTE DE
LA ENCIMERA A CONT.
229 mm HASTA
LOS MATERIALES
INFLAMABLES
*
229 mm HASTA
LOS MATERIALES
INFLAMABLES
*
64
mm*
ARMARIO
LATERAL
330 mm
máx.
737 mm
ANCHO DE CORTE
CORTE DE LA ENCIMERA
PARTE DELANTERA
489 mm
FONDO
DE CORTE
64 mm mín.
*Espacio de separación mínimo desde el corte de la superficie de cocción hasta los materiales inflamables hasta un máximo
de 457 mm sobre la encimera.
NOTA: la instalación detallada permite montar dos módulos de 381 mm contiguos.
G
23
I N S T R U C C I O N E S D E L A IN S TALACIÓ N
Medidas totales
5
33 mm
FONDO
TOTAL
762 mm
ANCHURA TOTAL
102 mm
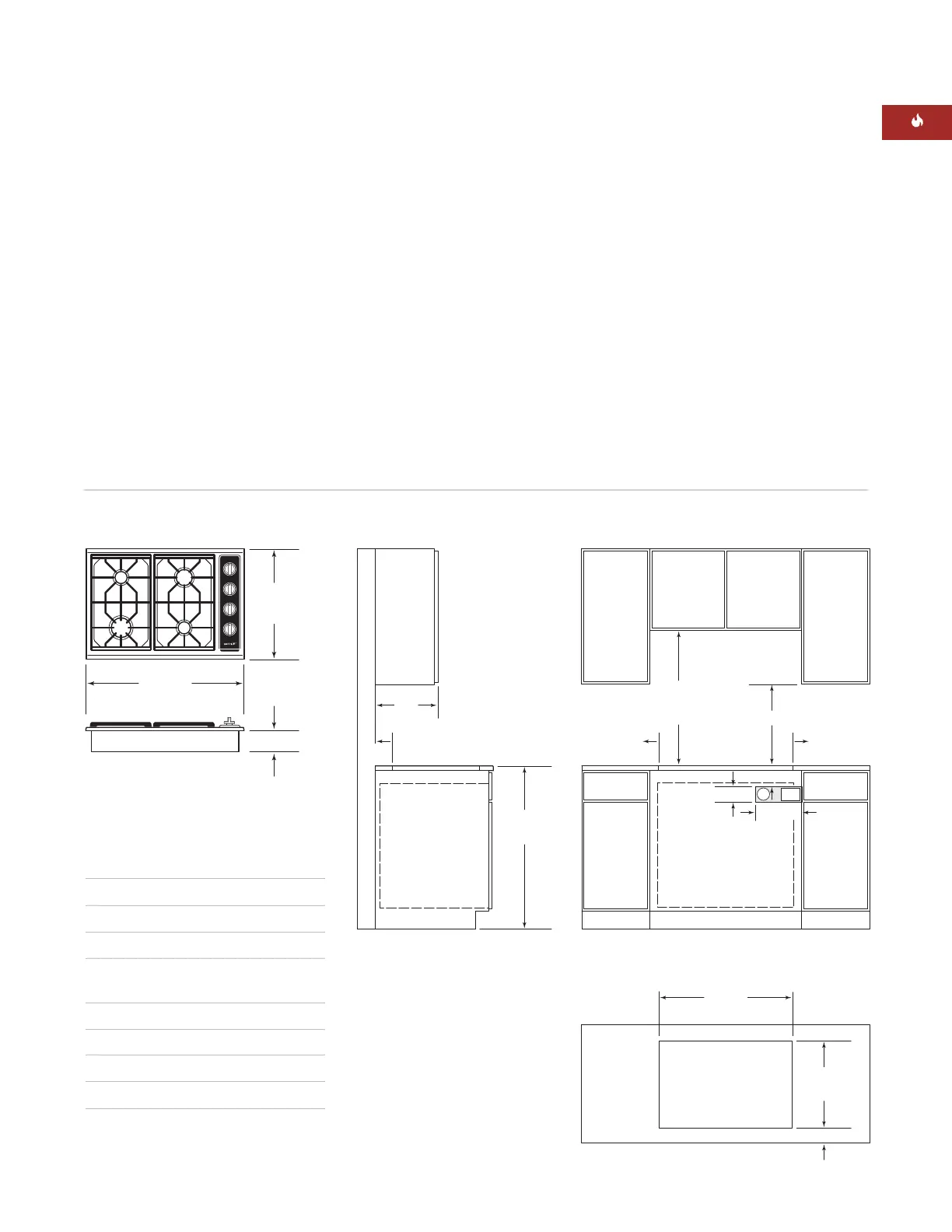
E S P E C I F I C A C I O N E S D E L A INSTA L AC I Ó N
Las ilustraciones que se muestran a continuación
proporcionan las medidas totales, las medidas de
corte de la encimera y las especificaciones de insta-
lación que corresponden al modelo ICBCT30G.
NOTA IMPORTANTE:
Para la instalación del modelo
ICBCT30G se recomienda utilizar armarios con un
ancho de 838 mm.
Se puede instalar un horno integrable sencillo de
762 mm debajo del modelo ICBCT30G. Para esta
instalación, a menos que vaya a utilizar armarios
con un fondo superior a 610 mm, se recomienda que
la toma eléctrica y de gas se coloque en un armario
base situado a la derecha del horno. Consulte las
instrucciones de instalación que se proporcionan con
el horno integrable para obtener más información.
Si instala el modelo ICBCT30G encima de los
armarios, la colocación de la toma eléctrica y de gas
no es importante. Es necesario colocar una toma de
corriente conectada a tierra a una distancia de 1,2 m
de la parte trasera derecha de la placa.
NOTA IMPORTANTE:
Cuando instalen varias placas
juntas, consulte las dimensiones de corte de la
encimera en la página 25.
M O D E L O I C B C T 3 0 G
M E D I D A S
Anchura total 762 mm
Altura total 102 mm
Fondo total 533 mm
Anchura del armario
recomendada 838 mm
Fondo mínimo del armario 578 mm
Espacio mínimo de altura 102 mm
Ancho del corte 737 mm
Fondo del corte 489 mm
Las dimensiones de la unidad pueden
variar
±
3 mm.
E S P E C I F I C A C I O N E S D E L A I N S TA L AC I Ó N M O D E L O I C B C T 3 0 G

Related product manuals