EasyManua.ls Logo

Wolf ICBDF366 - Page 25

Wolf ICBDF366
76 pages
Print Icon
To Next Page IconTo Next Page
To Next Page IconTo Next Page
To Previous Page IconTo Previous Page
To Previous Page IconTo Previous Page
Loading...
Wolf Induction and Electric Cooktops 25
wolfappliance.com/specs
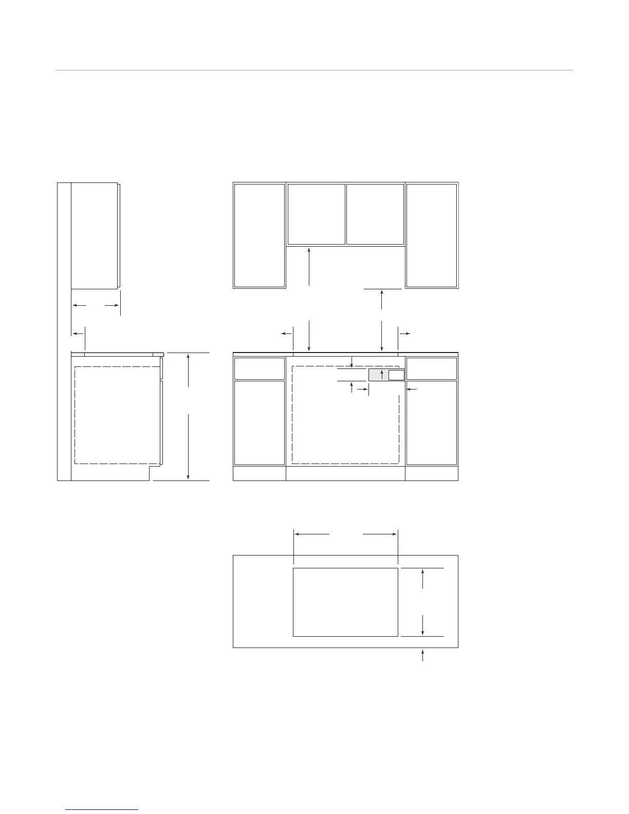
457 mm min
914 mm
FLOOR TO
COUNTERTOP
762 mm
min
COUNTERTOP
T
O COMBUSTIBLE
M
ATERIALS
762 mm OVEN OPENING
114 mm
254 mm
89 mm
E
S
EE COUNTERTOP
C
UT-OUT BELOW
51 mm T
O
C
OMBUSTIBLE
*
51 mm T
O
C
OMBUSTIBLE
*
51
mm*
S
IDE
C
ABINET
3
30 mm
max
721 mm
CUT-OUT WIDTH
COUNTERTOP CUT-OUT
FRONT
489 mm
CUT-OUT
DEPTH
64 mm min
*Minimum clearance from cooktop cut-out to combustible materials up to 457 mm above countertop.
NOTE: Electrical location applies only to installation with built-in oven.
762 mm Framed Cooktop
STANDARD INSTALLATION

Other manuals for Wolf ICBDF366

Related product manuals