EasyManua.ls Logo

Wolf ICBDF366 - Page 41

Wolf ICBDF366
76 pages
Print Icon
To Next Page IconTo Next Page
To Next Page IconTo Next Page
To Previous Page IconTo Previous Page
To Previous Page IconTo Previous Page
Loading...
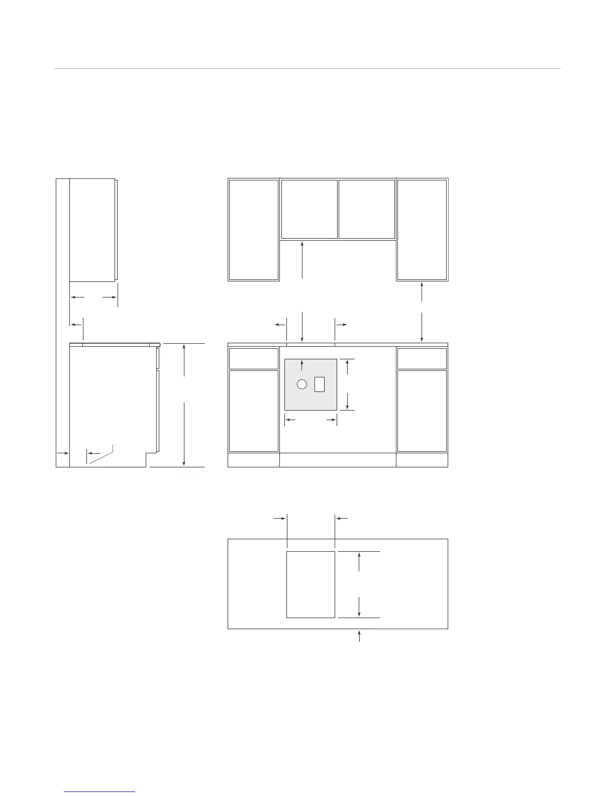
Wolf Integrated Modules 41
wolfappliance.com/specs
914 mm
FLOOR TO
COUNTERTOP
762 mm min
COUNTERTOP
TO COMBUSTIBLE
MATERIALS
SEE COUNTERTOP
CUT-OUT BELOW
356 mm
CUT-OUT
WIDTH
COUNTERTOP CUT-OUT
FRONT
489 mm
CUT-OUT
DEPTH
64 mm min
178 mm TO
COMBUSTIBLE*
178 mm TO
COMBUSTIBLE*
SIDE
CABINET
3
30 mm
m
ax
*Minimum clearance from cooktop cut-out to combustible materials up to 457 mm above countertop.
NOTE: Application shown allows for installation of two 381 mm modules side by side.
E
381 mm
381
mm
102 mm
457 mm min
127
mm
LOCATION OF GAS
AND ELECTRICAL
EXTENDS ON FLOOR
G
64
mm*
Multi-Function Cooktop
STANDARD INSTALLATION

Other manuals for Wolf ICBDF366

Related product manuals