EasyManua.ls Logo

Wolf SO30F/S - Page 109

Wolf SO30F/S
120 pages
Print Icon
To Next Page IconTo Next Page
To Next Page IconTo Next Page
To Previous Page IconTo Previous Page
To Previous Page IconTo Previous Page
Loading...
Wolf Pro Ventilation 109
wolfappliance.com/specs
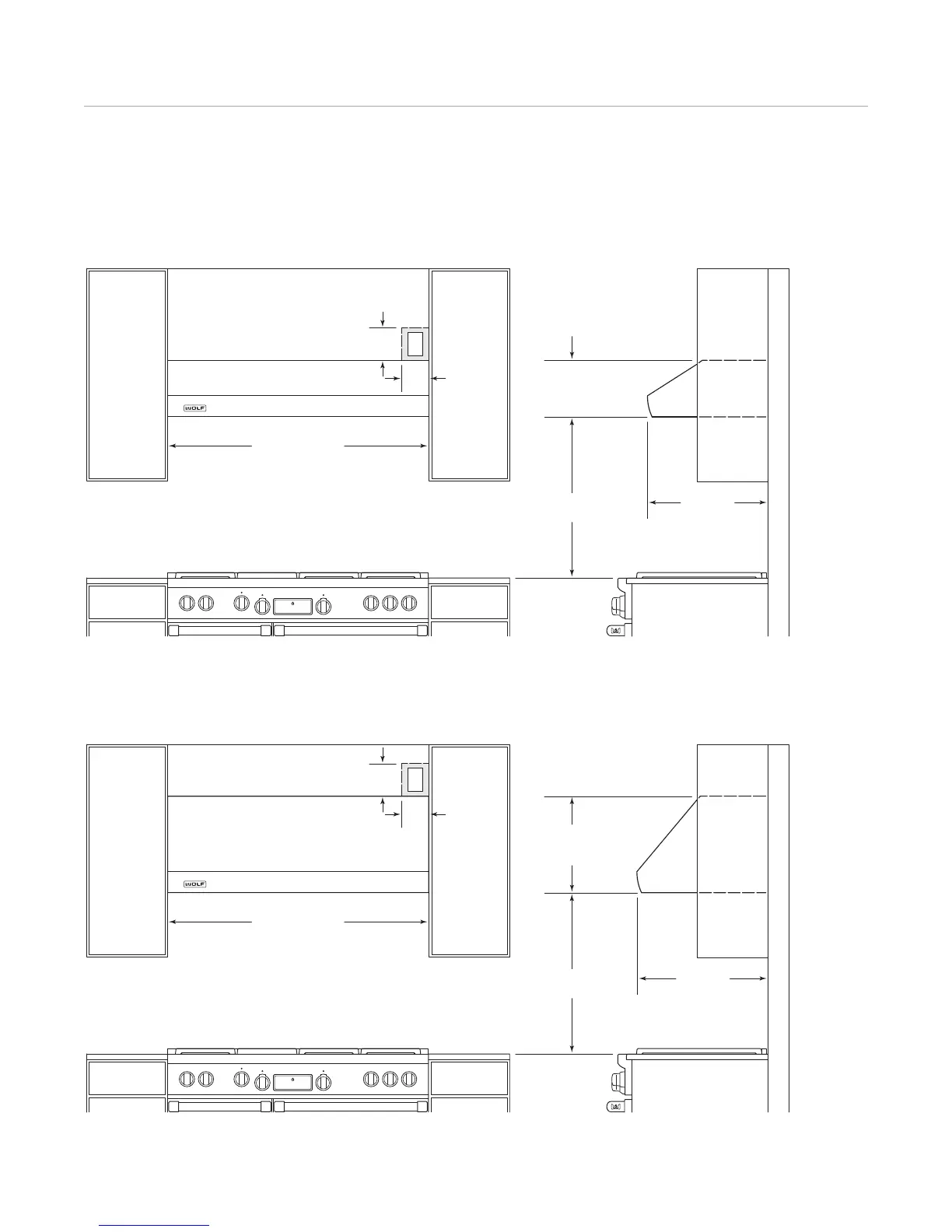
E
6"
(152)
5"
(127)
LOCATION OF ELECTRICAL
WIDTH OF HOOD
30" (762) TO 36" (914)
TO COUNTERTOP
10" (254)
HEIGHT
OF HOOD
22" (559)
DEPTH OF HOOD
SIDE VIEW
Low-Profile Wall Hood
INSTALLATION
E
6"
(152)
5"
(127)
LOCATION OF ELECTRICAL
WIDTH OF HOOD
30" (762) TO 36" (914)
TO COUNTERTOP
18" (457)
HEIGHT
OF HOOD
24" (610)
DEPTH OF HOOD
SIDE VIEW
24" (610) Deep Wall Hood
INSTALLATION

Other manuals for Wolf SO30F/S

Related product manuals