EasyManua.ls Logo

Wolf SO30F/S - Page 13

Wolf SO30F/S
120 pages
Print Icon
To Next Page IconTo Next Page
To Next Page IconTo Next Page
To Previous Page IconTo Previous Page
To Previous Page IconTo Previous Page
Loading...
Wolf Built-In Ovens 13
wolfappliance.com/specs
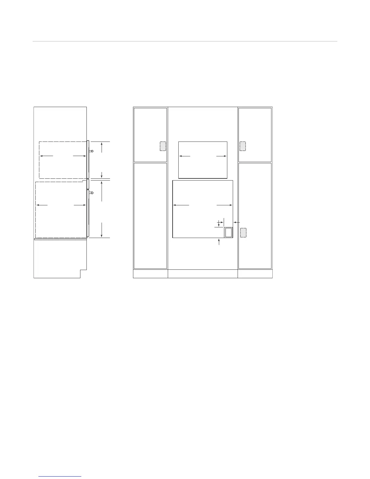
FRONT VIEWSIDE VIEW
28
1
/2" (724)
E SERIES OVEN
OPENING WIDTH
E
E
5"
(127)
4"
(102)
NOTES: Minimum base support for steam oven 100 lbs (45 kg) and E series oven 250 lbs (113 kg).
Electrical supply for steam oven must be located in adjacent cabinet within 3'
(.9 m) of opening.
Location of electrical supply within E series oven opening may require additional cabinet depth.
Dashed line represents profile of unit.
24" (610) min
OPENING DEPTH
27
3
/16"
(691)
OPENING
HEIGHT
5
/8"
(16) min
17
11
/16"
(449)
O
PENING
HEIGHT
21
9
/16"
(548) min
OPENING DEPTH
22
1
/4" (565)
STEAM OVEN
OPENING WIDTH
EE
30" (762) E Series Single Oven
STANDARD INSTALLATION WITH CONVECTION STEAM OVEN

Other manuals for Wolf SO30F/S

Related product manuals