EasyManua.ls Logo

Wolf SO30F/S - Page 17

Wolf SO30F/S
120 pages
Print Icon
To Next Page IconTo Next Page
To Next Page IconTo Next Page
To Previous Page IconTo Previous Page
To Previous Page IconTo Previous Page
Loading...
Wolf Built-In Ovens 17
wolfappliance.com/specs
30
3
/8" (772) min
FLUSH INSET WIDTH
SIDE CLEATS
24
3
/4"*
(629) min
FLUSH
INSET
DEPTH
1" (25)*
*For black glass model, increase dimension by
1
/4" (6).
NOTES: Minimum base support for oven 250 lbs
(113 kg).
Location of electrical supply within oven opening may require additional cabinet depth.
Cleats may be visible and should be finished to match cabinetry.
Dashed line represents profile of unit.
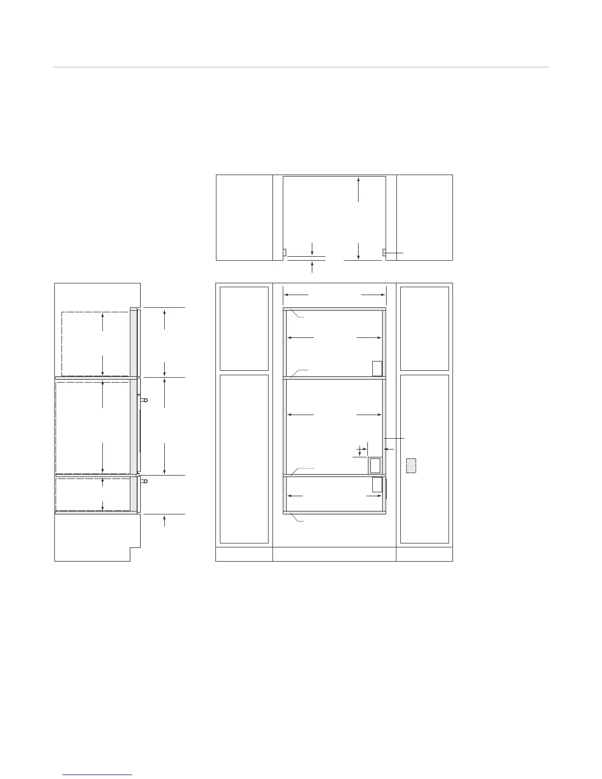
FRONT VIEWSIDE VIEW
TOP VIEW
10
5
/8"
(270)
FLUSH INSET
HEIGHT
9
1
/8" (232)
OPENING HEIGHT
E
1" (25) BOTTOM CLEAT
28
5
/8" (727)
WARMING DRAWER
OPENING WIDTH
18
7
/8" (
479)
OPENING
HEIGHT
20
1
/8"
(511)
FLUSH INSET
HEIGHT
27
1
/2" (699)
CONVECTION MICROWAVE
OPENING WIDTH
E
28
1
/2" (724)
E SERIES OVEN
OPENING WIDTH
1
/2" (13) TOP CLEAT
9
/16" (14)
CLEAT
1" (25)
SIDE CLEATS
E
E
5"
(127)
4"
(102)
27
3
/16"
(691)
OPENING
HEIGHT
28
1
/8"
(714) min
FLUSH INSET
HEIGHT
1
5
/8" (41) CLEAT
30" (762) E Series Single Oven
FLUSH INSET INSTALLATION WITH CONVECTION MICROWAVE AND WARMING DRAWER

Other manuals for Wolf SO30F/S

Related product manuals