EasyManua.ls Logo

Wolf SO30F/S - Page 18

Wolf SO30F/S
120 pages
Print Icon
To Next Page IconTo Next Page
To Next Page IconTo Next Page
To Previous Page IconTo Previous Page
To Previous Page IconTo Previous Page
Loading...
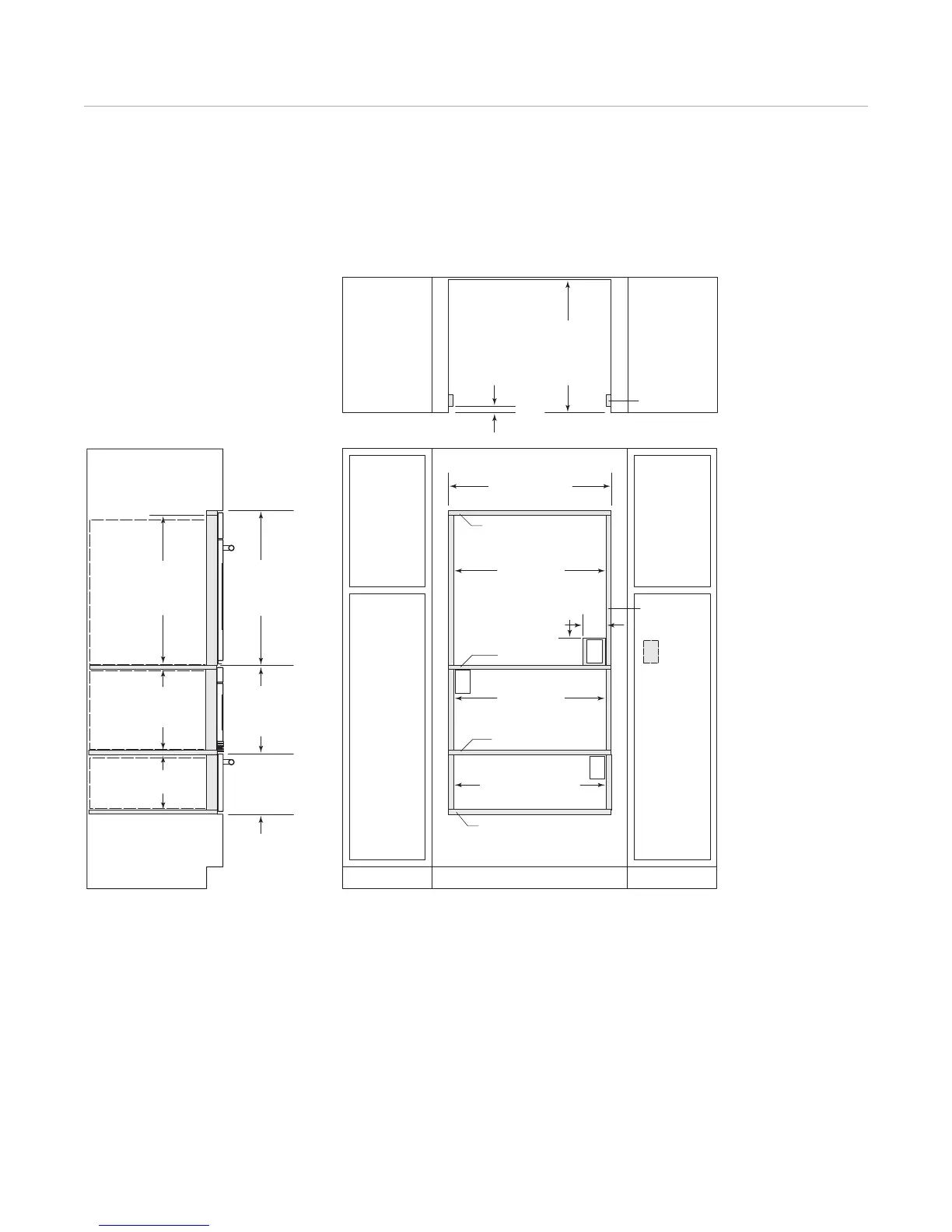
Wolf Built-In Ovens 18
27
3
/16"
(691)
OPENING
HEIGHT
28
1
/8"
(714) min
FLUSH INSET
HEIGHT
28
1
/2" (724)
E SERIES OVEN
OPENING WIDTH
30
3
/8" (772) min
FLUSH INSET WIDTH
28
1
/2" (724)
DRAWER MICROWAVE
OPENING WIDTH
E
7
/8"(22) TOP CLEAT
9
/16" (14)
CLEAT
5
/8" (16) CLEAT
SIDE CLEATS
24
3
/4"*
(629) min
FLUSH
INSET
DEPTH
1
1
/4" (32)*
FOR MICROWAVE
1" (25)* FOR
OVEN
AND WARMING
DRAWER
*For black glass model, increase dimension by
1
/4" (6).
NOTES: Minimum base support for oven 250 lbs
(113 kg).
Location of electrical supply within oven opening may require additional cabinet depth.
Cleats may be visible and should be finished to match cabinetry.
Dashed line represents profile of unit.
FRONT VIEWSIDE VIEW
TOP VIEW
14
3
/4" (375)
OPENING
HEIGHT
15
3
/8"
(391)
FLUSH INSET
HEIGHT
1" (25)
SIDE CLEATS
10
5
/8"
(270)
FLUSH INSET
HEIGHT
9
1
/8" (232)
OPENING HEIGHT
E
1" (25) BOTTOM CLEAT
28
5
/8" (727)
WARMING DRAWER
OPENING WIDTH
E
E
5"
(127)
4"
(102)
30" (762) E Series Single Oven
FLUSH INSET INSTALLATION WITH DRAWER MICROWAVE AND WARMING DRAWER

Other manuals for Wolf SO30F/S

Related product manuals