EasyManua.ls Logo

Wolf SO30F/S - Page 35

Wolf SO30F/S
120 pages
Print Icon
To Next Page IconTo Next Page
To Next Page IconTo Next Page
To Previous Page IconTo Previous Page
To Previous Page IconTo Previous Page
Loading...
Wolf Warming Drawers 35
wolfappliance.com/specs
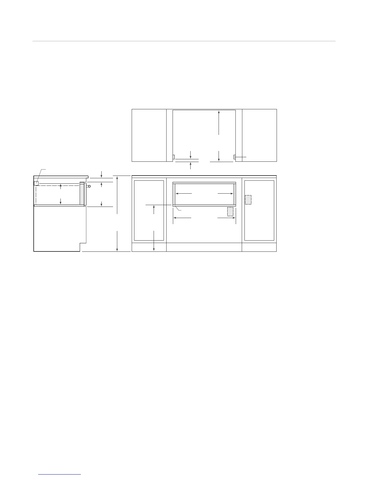
DIMENSION
W
ILL VARY**
23
1
/2"
(597)
TYPICAL
FRONT VIEWSIDE VIEW
30
3
/8" (772)
FLUSH INSET WIDTH
28
5
/8" (727)
OPENING WIDTH
7
/8" (22) BOTTOM CLEAT
7
/8" (22) TOP AND SIDE CLEATS
36" (914)
FLOOR TO
COUNTERTOP
10
7
/8" (276)
FLUSH INSET
HEIGHT
9
1
/8" (232)
OPENING HEIGHT
E
E
SIDE CLEATS
24 (
610) min
*
FLUSH INSET
DEPTH
1" (25)*
TOP VIEW
ANTI-TIP BLOCK
*For black glass model, increase dimension by
1
/4" (6).
**Dimension must accommodate height of anti-tip block and drawer face overlap.
NOTES: Dimensions provided allow for
1
/4" (6) reveal for proper air flow.
Location of electrical supply within opening may require additional cabinet depth.
Dashed line represents profile of unit.
E Series and Integrated Drawer Front
FLUSH INSET INSTALLATION

Other manuals for Wolf SO30F/S

Related product manuals