EasyManua.ls Logo

Wolf SO30F/S - Page 52

Wolf SO30F/S
120 pages
Print Icon
To Next Page IconTo Next Page
To Next Page IconTo Next Page
To Previous Page IconTo Previous Page
To Previous Page IconTo Previous Page
Loading...
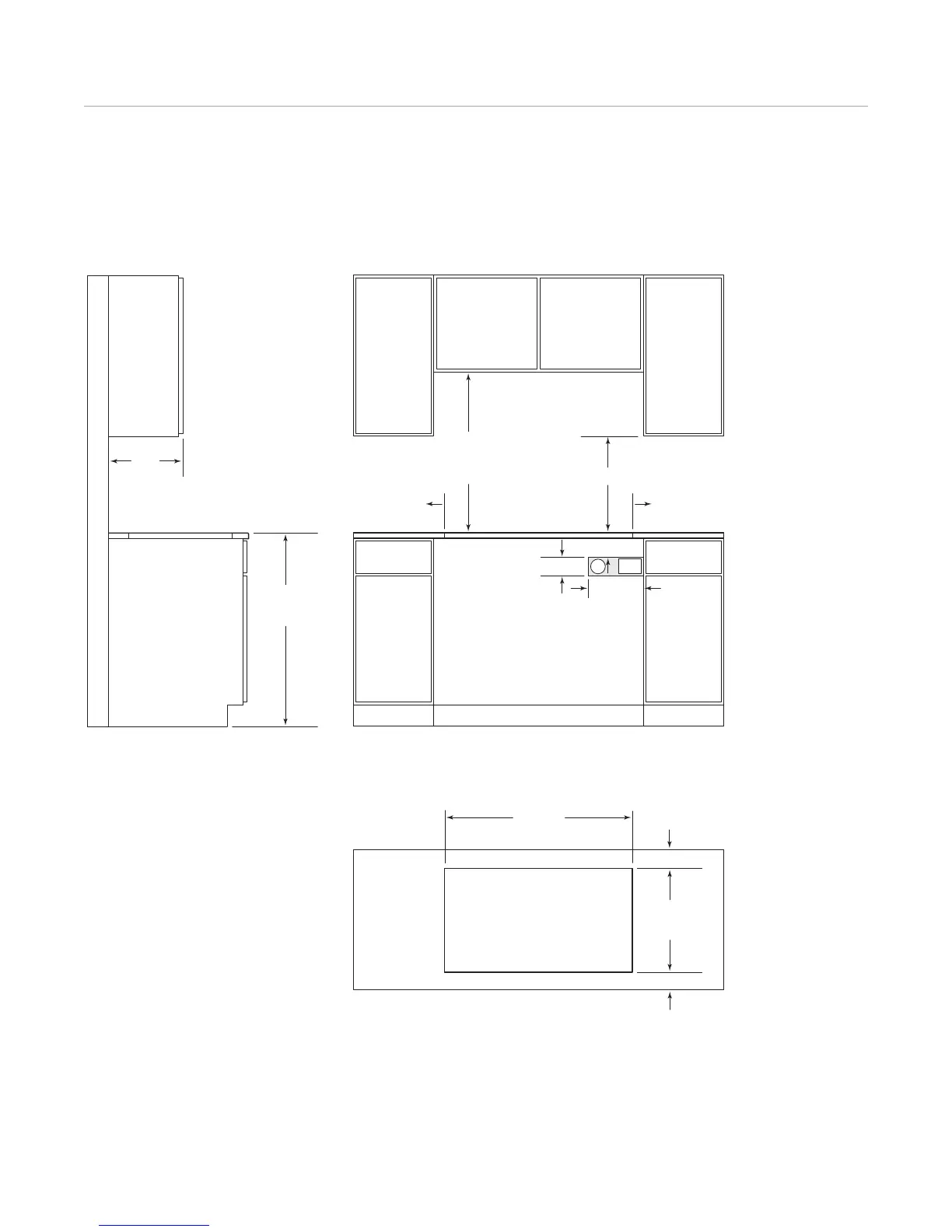
Wolf Gas Cooktops 52
4"
(
102
)
E
G
18" (457) min
36" (914)
FLOOR TO
COUNTERTOP
30" (762) min
COUNTERTOP
TO COMBUSTIBLE
MATERIALS
10" (254)
3
1
/2" (89)
SEE COUNTERTOP
CUT-OUT BELOW
35" (889)
CUT-OUT WIDTH
COUNTERTOP CUT-OUT
FRONT
19
1
/4" (489)
CUT-OUT
DEPTH
2
1
/2" (64) min
9" (229) TO
COMBUSTIBLE*
9" (229) TO
COMBUSTIBLE*
SIDE
CABINET
13" (330)
max
2
1
/2" (64) min*
FRONT VIEWSIDE VIEW
*Minimum clearance from cooktop cut-out to combustible materials up to 18" (457) above countertop.
NOTE: Gas and electrical location applies only to installation with built-in oven.
36" (914) Gas Cooktop
STANDARD INSTALLATION

Other manuals for Wolf SO30F/S

Related product manuals