EasyManua.ls Logo

Wolf SO30F/S - Page 57

Wolf SO30F/S
120 pages
Print Icon
To Next Page IconTo Next Page
To Next Page IconTo Next Page
To Previous Page IconTo Previous Page
To Previous Page IconTo Previous Page
Loading...
Wolf Integrated Modules 57
wolfappliance.com/specs
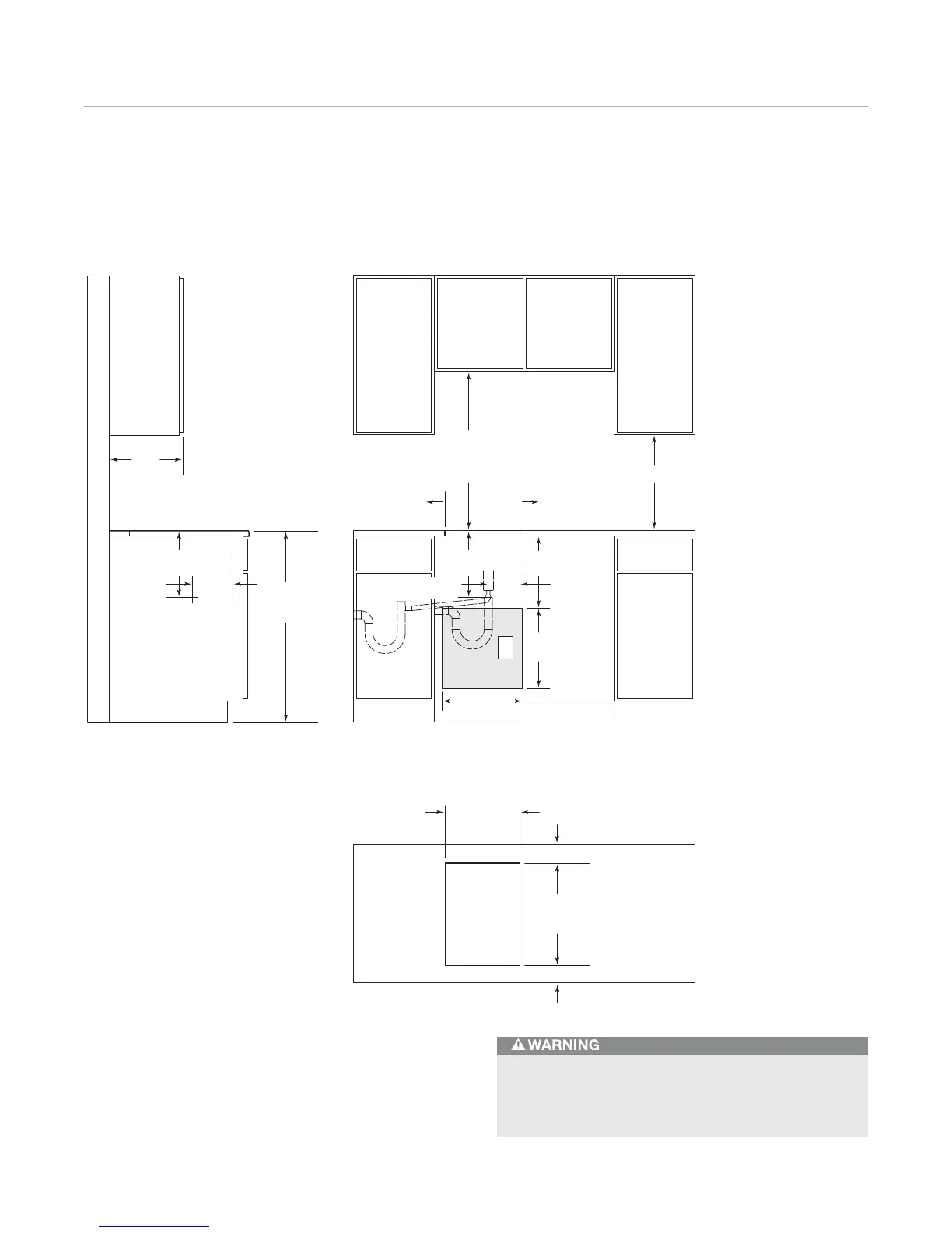
E
15" (381)
15"
(381)
12
3
/8"
(314)
13
1
/2"
(343)
12
3
/8"
(314)
36" (914)
FLOOR TO
COUNTERTOP
30" (762) min
COUNTERTOP
TO COMBUSTIBLE
MATERIALS
SEE COUNTERTOP
CUT-OUT BELOW
14" (356)
CUT-OUT
WIDTH
COUNTERTOP CUT-OUT
FRONT
19
1
/4" (489)
CUT-OUT
DEPTH
2
1
/2" (64) min
7" (178) TO
COMBUSTIBLE
*
7" (178) TO
COMBUSTIBLE
*
SIDE
CABINET
13" (330)
max
18" (457) min
7
5
/8"
(194)
DRAIN
OUTLET
6"
(152)
DRAIN
OUTLET
2" (51) min*
FRONT VIEWSIDE VIEW
*Minimum clearance from cooktop cut-out to combustible materials up to 18" (457) above countertop.
NOTE: Application shown allows for installation of two 15"
(381) modules side by side.
DRAIN CONNECTION OPTIONS
The
5
/8" (16) outlet from the steamer valve will accept a
drain hose that must flow downward to, and tie into, an
existing sink drain. A separate drain with a freefall may also
be installed, or a heat-resistant receptacle may be placed
under the drain outlet for drainage.
Electric Steamer
STANDARD INSTALLATION
The steamer module must be installed at least 15" (381)
from a Wolf fryer module. Contact between water and
hot oil may cause burns from steam and hot oil.

Other manuals for Wolf SO30F/S

Related product manuals