EasyManua.ls Logo

Wolf SO30F/S - Page 58

Wolf SO30F/S
120 pages
Print Icon
To Next Page IconTo Next Page
To Next Page IconTo Next Page
To Previous Page IconTo Previous Page
To Previous Page IconTo Previous Page
Loading...
Wolf Integrated Modules 58
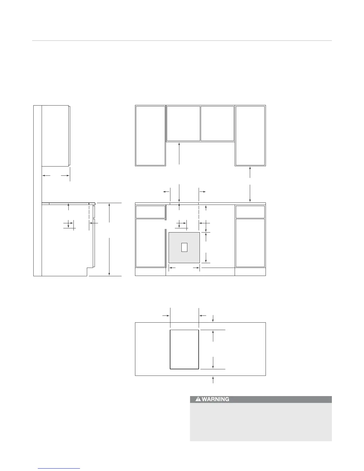
E
15" (381)
15"
(381)
12
3
/8"
(314)
7
5
/8"
(194)
DRAIN
OUTLET
13
1
/2"
(343)
12
3
/8"
(314)
6"
(152)
36" (914)
FLOOR TO
COUNTERTOP
30" (762) min
COUNTERTOP
TO COMBUSTIBLE
MATERIALS
SEE COUNTERTOP
CUT-OUT BELOW
14" (356)
CUT-OUT
WIDTH
COUNTERTOP CUT-OUT
FRONT
19
1
/4" (489)
CUT-OUT
DEPTH
2
1
/2" (64) min
7" (178) TO
COMBUSTIBLE*
7" (178) TO
COMBUSTIBLE*
SIDE
CABINET
13" (330)
max
18" (457) min
DRAIN
OUTLET
2" (51) min*
FRONT VIEWSIDE VIEW
*Minimum clearance from cooktop cut-out to combustible materials up to 18" (457) above countertop.
NOTES: Fryer module must be installed in base cabinet with access to valve at bottom of unit to drain oil into heat-resistant receptacle.
Application shown allows for installation of two 15"
(381) modules side by side.
Electric Fryer
STANDARD INSTALLATION
DRAIN CONNECTION
The fryer module must be installed in a base cabinet with
access to the manual valve at the bottom of the unit to
drain oil into a heat-resistant receptacle.
The fryer module must be installed at least 15" (381)
from any open-flame cooking device or a Wolf steamer
module. The open flame may cause ignition of oil, and
contact between water and hot oil may cause burns.

Other manuals for Wolf SO30F/S

Related product manuals