EasyManua.ls Logo

Wolf TSW-120 - Please Note; Layout

Wolf TSW-120
20 pages
Print Icon
To Next Page IconTo Next Page
To Next Page IconTo Next Page
To Previous Page IconTo Previous Page
To Previous Page IconTo Previous Page
Loading...
Installation instructions DHW cylinders TSW-120/CSW-120
3048420_0707
6
i
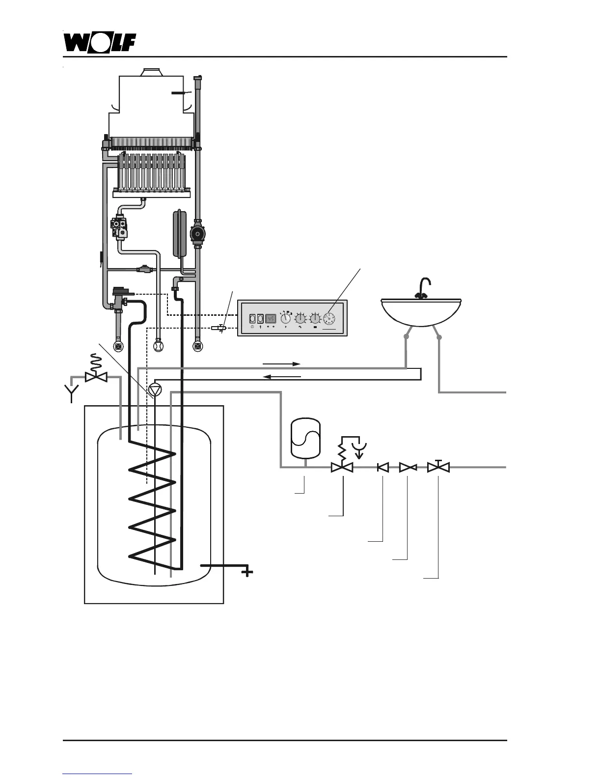
Layout
Gas-fired boiler control unit
Domestic hot water
DHW circulation
DHW
circulation
pump
DHW cylinder sensor
connection (blue plug)
Expansion vessel
Expansion valve with
discharge outlet to tundish
Check valve
Stop valve
Pressure reducing valve
Drain
Cold water to
DHW
cylinder
Cold water
supply according
to British
Standards
Please note:
The layout is provided to provide a general overview, not a piping
prescription.

Related product manuals