EasyManua.ls Logo

World Cat 2006 270EC - Generator Rigging

World Cat 2006 270EC
58 pages
Print Icon
To Next Page IconTo Next Page
To Next Page IconTo Next Page
To Previous Page IconTo Previous Page
To Previous Page IconTo Previous Page
Loading...
World Cat
5-21
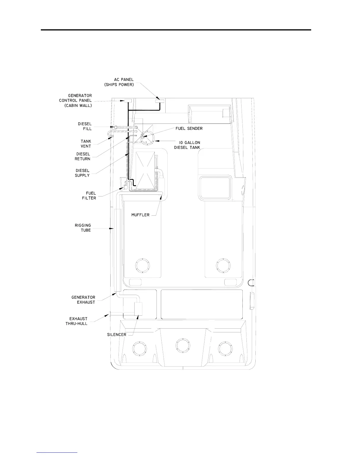
GENERATOR RIGGING
GEN

Table of Contents

Related product manuals