EasyManua.ls Logo

Xentaur XDT - Appendix I: XDT Grounding Considerations

Default Icon
70 pages
Print Icon
To Next Page IconTo Next Page
To Next Page IconTo Next Page
To Previous Page IconTo Previous Page
To Previous Page IconTo Previous Page
Loading...
XDT User’s Manual Appendices
42
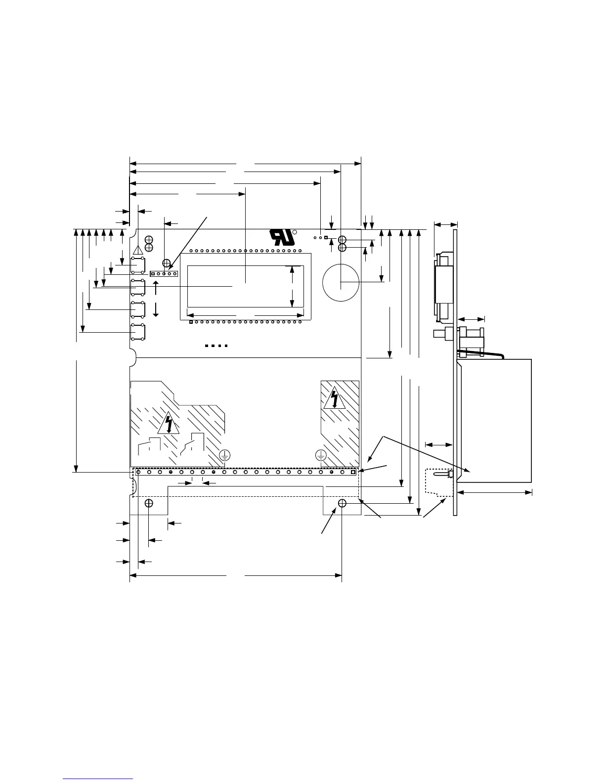
Appendix E: XDT Circuit Board Dimensions
LOW RELAY
HI RELAY
NC
NO
C
NC
NO
C
CAUTION
RELAY
VOLTAGE
oo
GND
GND
10VA
50/60HZ
100-250VAC
J.F.M.A.M.J.J.A.S.O.N.D
2003
2002
2001
2000
S4
S3
S2
S1
R
S
R
P
E
D
O
M
MADE IN USA
XDT (C) 1999 XENTAUR CORP.
PS+
RET
RXD
TXD
A.OUT
A.RET
SIGNAL-RET
SIGNAL-IN
ACH
ACN
DEWPOINT TRANSMITTER
CU
S
R
0.627"
0.146"
0.195"
0.335"
0.965"
4.370"
5.145"
4.935"
4.630"
0.155"
3.502"
3.900"
0.158"
2.315"
0.805"
1.853"
1.453"
1.052"
1.030"
0.662"
0.700"
0.740"
2.140"
0.197" (5mm) typ.
0.350"
3.875"
2.125"
4.250"
score line, break to fit in PM box
C
L
C
L
0.51"
0.44"
0.5"
1.38"
Audio
Indicator
Pluggable Screw
Terminal Connector
outline.
Mounting Holes
d=0.150" (6 places)
P1
Optional Key Pad
Connector
AC Power
FUSE on
side-mounted
RFI daughter
board.
DISPLAY
1
1
RFI daughter board
SIDE VIEWTOP VIEW

Table of Contents