EasyManua.ls Logo

York CZF - Single Stage Wiring Diagram (5 Ton)

York CZF
26 pages
Print Icon
To Next Page IconTo Next Page
To Next Page IconTo Next Page
To Previous Page IconTo Previous Page
To Previous Page IconTo Previous Page
Loading...
835965-UIM-C-0814
Johnson Controls Unitary Products 23
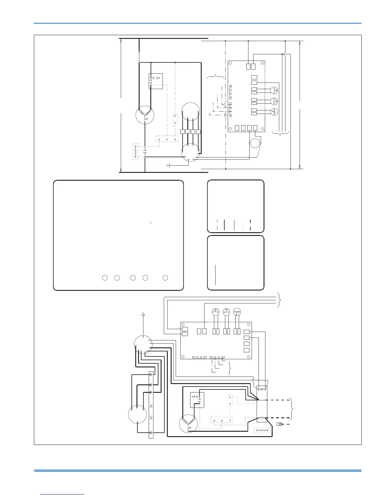
FIGURE 19: Single Stage Wiring Diagram (5 Ton)
24 V
208-230V
COMPR
L1
L2
L1
T1
CC
T2
L2
CC
RED
RED
BRN
BLK
579145-UWD-B-0313
LADDER DIAGRAM
OFM
VS
5
SLV
SLV
1
6
RED
RED
BLK
BLK
VS
CONTROL
BRN
BLU
BLK
WIRING DIAGRAM
S
C
R
FAN MOTOR
6
3
5
PLUG
4
2
1
S
C
R
COMPRESSOR
USE
COPPER
CONDUCTORS
ONLY
208-230VAC 60 Hz
1 PHASE SUPPLY
GRN/YEL
BLU
RED
BLK
BRN
BLK
CAPACITOR
H
C
F
RED
BLK
GND
GND
LUG
RED
L1
L2
T1
T2
CC
CONTACTOR
5
2
1
SR
SC
YEL
BRN
BLK
RED
CCH
VS
CONTROL
BLU
WHT
BRN
BLK
A R C B
A R C B
WHT
BLK
RED
GRN
S
C
R
H
C
F
5
2
1
SR
SC
YEL
BLK
BRN
RED
SEE INSTALLATION
INSTRUCTIONS FOR
COMMUNICATION
CONNECTIONS
CAP
CCH
COMMUNICATIONS
WHT
RED
BLU
BLU/PNK
C
M
M1
M2
COMMUNICATIONS
OD AUX
CONTROL
R
C
Y1
Y2
BLU/PNK
BRN/PNK
BRN/PNK
YEL
BLK
RED
BLK
GRY
AMB
SENS
HPS
LPS
WHT
WHT
A R C B
A R C B
WHT
BLK
RED
GRN
SEE INSTALLATION
INSTRUCTIONS
FOR LOW
VOLTAGE
CONNECTIONS
SEE INSTALLATION
INSTRUCTIONS FOR
COMMUNICATION
CONNECTIONS
BLU/PNK
C
M
M1
M2
R
C
Y1
Y2
BLU/PNK
BRN/PNK
BRN/PNK
YEL
BLK
RED
GRY
AMB
SENS
HPS
LPS
WHT
WHT
CC
RED
SEE INSTALLATION
INSTRUCTIONS
FOR LOW
VOLTAGE
CONNECTIONS
BLK
RED
GRN/YEL
3
BLU
BLU
SLV
SLV
BLK
DANGER - SHOCK HAZARD
TURN OFF ELECTRICAL POWER BEFORE SERVICING
TO PREVENT POSSIBLE DAMAGE TO THE EQUIPMENT
AND POSSIBLE PERSONAL INJURY.
CAUTION
TO PREVENT ELECTRICAL SHOCK OPEN REMOTE
DISCONNECT SO ELECTRICAL SUPPLY TO AIR
CONDITIONER IS SHUT OFF.
COMPONENTS SHOWN IN DASH LINES
ARE OPTIONAL.
DUAL CAPACITOR SHOWN. SEPARATE
CAPACITORS MAY BE USED ON ACTUAL
UNIT.
WIRING MUST CONFORM TO NATIONAL
AND LOCAL CODES.
IF ANY OF THE ORIGINAL WIRE SUPPLIED
WITH THIS UNIT MUST BE REPLACED, IT
MUST BE REPLACED WITH 105
C
THERMOPLASTIC OR ITS EQUIVALENT.
WHERE POWER SUPPLY HAS ONE (1) 240
VOLT CONDUCTOR AND ONE (1) NEUTRAL
CONDUCTOR, CONNECT L2 OF CONTACTOR
TO NEUTRAL.
1
2
3
4
5
LEGEND
CAP - CAPACITOR
COMPR - COMPRESSOR
CC - CONTACTOR COIL
CCH - CRANKCASE HEATER
HPS - HIGH PRESS SWITCH
LPS - LOW PRESS SWITCH
OFM - OUTDOOR FAN
MOTOR
VS - VARIABLE SPEED
FIELD WIRING
LINE VOLTAGE
OPTIONAL WIRING
LOW VOLTAGE
FACTORY WIRING
HIGH VOLTAGE
FACTORY WIRING
COMMUNICATIONS

Related product manuals