EasyManua.ls Logo

Young 06201 - Page 6

Young 06201
9 pages
Print Icon
To Next Page IconTo Next Page
To Next Page IconTo Next Page
To Previous Page IconTo Previous Page
To Previous Page IconTo Previous Page
Loading...
Page 5
06201-90(K)
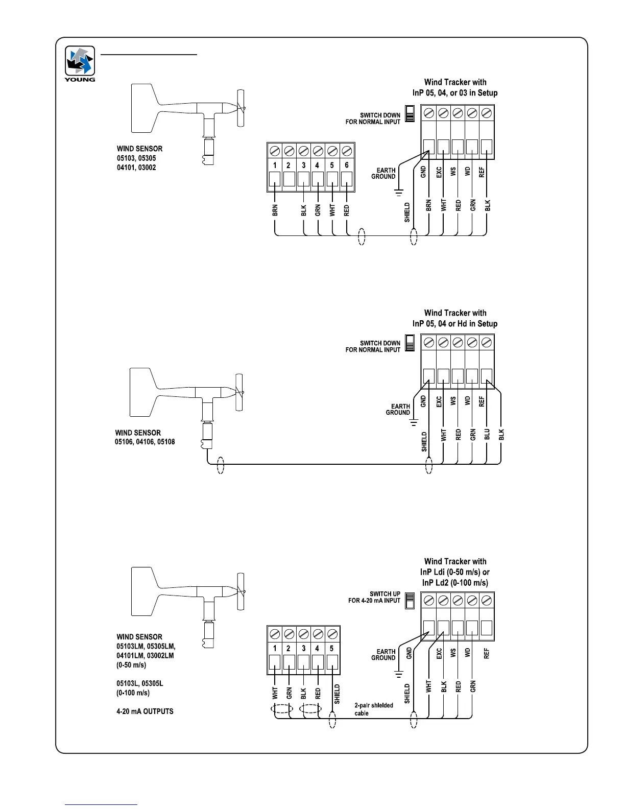
WIRING DIAGRAMS

Related product manuals